Sinnvolles Wohnungsinvestment fertig gestellt! Sofort vermietbar, sofort Erträge erzielen. Neubau-Erstbezug – die Küche ist inkludiert!
1140 Wien, Penzing, Ameisgasse




































Objektinformation
Kosten
Kaufpreis€ 438.300
Provision
Provisionsfrei
Vertragsart
, Kauf
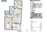
Wohnfläche
64,07 m2 (3 Zimmer)
Freifläche
, Balkon, Loggia
Bauart
Neubau: 2024
Energie
HWB42 kWh/m²
HWB-KlasseB
fGEE0,64
fGEE-KlasseB
Beschreibung
Fertiggestellte Neubau-Erstbezugswohnungen in Penzing nahe Schönbrunn. Küche inklusive!
Auf was warten? Die bezugsfertigen Eigentumswohnungen in der Ameisgasse 28 im 14. Bezirk bestechen durch eine hervorragende Verkehrsanbindung sowie die Nähe zu Schloss Schönbrunn, dem Wienerwald oder dem Lainzer Tiergarten. Hochwertig ausgestattet bieten Sie Anlegern und Eigennutzern ein sehr spezielles und sinnvolles Immobilieninvestment.
Zusätzlicher Vorteil: die Küchen sind bereits im Kaufpreis inkludiert! Zum Teil haben die Wohnungen einen Tiefgaragenplat..
Auf was warten? Die bezugsfertigen Eigentumswohnungen in der Ameisgasse 28 im 14. Bezirk bestechen durch eine hervorragende Verkehrsanbindung sowie die Nähe zu Schloss Schönbrunn, dem Wienerwald oder dem Lainzer Tiergarten. Hochwertig ausgestattet bieten Sie Anlegern und Eigennutzern ein sehr spezielles und sinnvolles Immobilieninvestment.
Zusätzlicher Vorteil: die Küchen sind bereits im Kaufpreis inkludiert! Zum Teil haben die Wohnungen einen Tiefgaragenplat..
Mehr
Lage
Tiergarten Schönbrunn, Linzer Straße, Bahnhof Penzing, U4 - Hietzing
Auswahl ändern
Anbieter

Anbieter
Christian Leikam
teamneunzehn-GruppeTelefon
+43 664 889 ...

Anbieter kontaktieren
Virtuelle Besichtigung