4-Zimmer-Wohnung in Frohnleiten | Optimale Lage | Tolle Infrastruktur
8130 Frohnleiten






Objektinformation
Kosten
Kaufpreis€ 339.128
Vertragsart
, Kauf
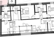
Wohnfläche
94,57 m2 (4 Zimmer)
Freifläche
, Loggia
Objektart
Etagenwohnung
Bauart
Neubau: 2025
Energie
HWB45 kWh/m²
HWB-KlasseB
fGEE0,73
fGEE-KlasseA
Beschreibung
Lage und Projekt:
In zentraler Lage - in der beliebten Stadt Frohnleiten wird eine schöne Wohnanlage mit 20 großzügigen Wohneinheiten und 32 Tiefgaragenparkplätzen errichtet.
Leistbares Wohnen durch niedrige Betriebskosten wird durch die exzellente Bauweise und den Einsatz einer energieeffizienten Luft-/Wasserwärmepumpe sichergestellt.
Das Gebäude wird in Ziegelmassivbauweise errichtet und verfügt über eine Tiefgarage und einen Lift, der in jedes Stockwerk führt. Somit sind alle Wohnungen barrierefrei erreichbar. Jede Wohnung verfügt über ein Kell..
In zentraler Lage - in der beliebten Stadt Frohnleiten wird eine schöne Wohnanlage mit 20 großzügigen Wohneinheiten und 32 Tiefgaragenparkplätzen errichtet.
Leistbares Wohnen durch niedrige Betriebskosten wird durch die exzellente Bauweise und den Einsatz einer energieeffizienten Luft-/Wasserwärmepumpe sichergestellt.
Das Gebäude wird in Ziegelmassivbauweise errichtet und verfügt über eine Tiefgarage und einen Lift, der in jedes Stockwerk führt. Somit sind alle Wohnungen barrierefrei erreichbar. Jede Wohnung verfügt über ein Kell..
Mehr
Weitere Preisinformationen
- Sonstige PreisangabenFixpreis
Auswahl ändern
Anbieter

Anbieter
Georg Herzog
RE/MAX ClassicTelefon
+43 664 15 ...

Anbieter kontaktieren