Neuwertige 2-Zimmer-Wohnung mit Balkon und Terrasse beim FAC-Platz – Nur 3 Minuten zur S-Bahn, verfügbar ab 01.01.2026
1210 Wien, Floridsdorf, Koloniestraße
















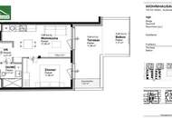
35,28 m²2 Zimmer€ 739,75
Objektinformation
Kosten
Gesamtbelastung (brutto)€ 739,75
Gesamtbelastung (netto)€ 672,50
Summe Miete (netto)€ 603,70
Betriebskosten (netto)€ 68,80
Provision
Gemäß Erstauftraggeberprinzip bezahlt der Abgeber die Provision.
Kautionshinweis
3 Bruttomonatsmieten
Vertragsart
, Miete , befristet
Wohnfläche
35,28 m2 (2 Zimmer)
Freifläche
, Balkon, Terrasse
Bauart
Neubau: 2021
Energie
HWB36,88 kWh/m²
HWB-KlasseB
fGEE0,8
fGEE-KlasseA
Beschreibung
Attraktives Wohnen in Jedlersdorf – Nähe S-Bahn, Parkanlagen und SCN
In ruhiger, aber bestens angebundener Lage im beliebten Jedlersdorf befindet sich ein modernes Wohnprojekt, das erst vor wenigen Jahren fertiggestellt wurde. Die Wohnanlage liegt nur wenige Gehminuten von der S-Bahn-Station Jedlersdorf, dem familienfreundlichen Denglerpark und dem bekannten FAC-Platz entfernt – ideal für alle, die urbanen Komfort mit Nähe zur Natur verbinden möchten.
Die Anlage umfasst sechs Gebäudeteile mit einer Vielzahl an Wohnungen – von gemütlichen Gartenwohnungen bis hin zu großzügigen Dac..
In ruhiger, aber bestens angebundener Lage im beliebten Jedlersdorf befindet sich ein modernes Wohnprojekt, das erst vor wenigen Jahren fertiggestellt wurde. Die Wohnanlage liegt nur wenige Gehminuten von der S-Bahn-Station Jedlersdorf, dem familienfreundlichen Denglerpark und dem bekannten FAC-Platz entfernt – ideal für alle, die urbanen Komfort mit Nähe zur Natur verbinden möchten.
Die Anlage umfasst sechs Gebäudeteile mit einer Vielzahl an Wohnungen – von gemütlichen Gartenwohnungen bis hin zu großzügigen Dac..
Mehr
Lage
Bahnhof Jedlersdorf, Shopping Center Nord, Denglerpark
Auswahl ändern
Anbieter

Anbieter
Stefan Djukic
teamneunzehn-GruppeTelefon
0664 53 ...

Anbieter kontaktieren