ARES TOWER - moderne Büroflächen!
1220 Wien, Donaustadt























1.387 m²€ 14,50 / m²
Objektinformation
Kosten
Miete / m²€ 14,50
Nebenkosten€ 5,45
Vertragsart
, Miete , unbefristet
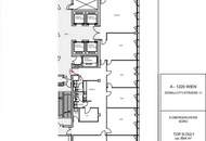
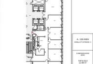
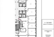
Nutzfläche
1.387 m2
Energie
HWB61 kWh/m²
Beschreibung
Im wohl modernsten und faszinierendsten Business-Areal Wiens gelangen mehrere sehr gepflegte Büroräumlichkeiten zur Vermietung.
Der Ares- Tower bildet gemeinsam mit dem höchsten Hochhaus Österreichs und weiteren prestigeträchtigen Gebäuden, die erhabene "Wiener Skyline".
Eingehüllt in ein dynamisches und aufgeschlossenes Business- Ambiente, so wie es dem einer internationalen Hauptstadt würdig ist, überzeugt der Tower auf ganzer Linie mit modernem Komfort und ausgeklügeltem Service. "Glas" als das Hauptelement, verlieht den Einheiten des Towers ein luftiges wie offenes Raumgefühl, und er..
Der Ares- Tower bildet gemeinsam mit dem höchsten Hochhaus Österreichs und weiteren prestigeträchtigen Gebäuden, die erhabene "Wiener Skyline".
Eingehüllt in ein dynamisches und aufgeschlossenes Business- Ambiente, so wie es dem einer internationalen Hauptstadt würdig ist, überzeugt der Tower auf ganzer Linie mit modernem Komfort und ausgeklügeltem Service. "Glas" als das Hauptelement, verlieht den Einheiten des Towers ein luftiges wie offenes Raumgefühl, und er..
Mehr
Lage
Ganz gemäß einer bedeutenden Business-Zone gibt es im Areal ein vielfältiges Angebot an Restaurants, Shopping und Infrastruktur.
Die in nächster Nähe gelegene Donauinsel, als Erholungsgebiet und Mekka für Outdoor-Sportler, ist es wert erwähnt zu werden. Beste verkehrstechnische Anbindung sowie schneller Anschluss an den öffentlichen Verkehr sind selbstverständlich.
Öffentliche Verkehrsanbindung:
U-Bahn: U1 Station Vienna International Center in unmittelbarer Nähe
Autobus: 90A, 91A, 92A
Garage:
Tiefgaragenplatz: 134,44/Platz/Monat/netto
Betriebskosten f. Tiefgarage: 18,89/Platz/Monat/netto
Freistellplatz: 90,00/Platz/Monat/netto
Tiefgarage auch für Kurzparker nutzbar
Die in nächster Nähe gelegene Donauinsel, als Erholungsgebiet und Mekka für Outdoor-Sportler, ist es wert erwähnt zu werden. Beste verkehrstechnische Anbindung sowie schneller Anschluss an den öffentlichen Verkehr sind selbstverständlich.
Öffentliche Verkehrsanbindung:
U-Bahn: U1 Station Vienna International Center in unmittelbarer Nähe
Autobus: 90A, 91A, 92A
Garage:
Tiefgaragenplatz: 134,44/Platz/Monat/netto
Betriebskosten f. Tiefgarage: 18,89/Platz/Monat/netto
Freistellplatz: 90,00/Platz/Monat/netto
Tiefgarage auch für Kurzparker nutzbar
Ausstattung
6. OG / 2
Teppichboden
Glaswände mit Glastüren
Bodensteckdosen
Deckenbeleuchtung
Teeküche
Heizung und Klimaanlage
24h Portierdienst
Zutrittskontrolle
Brandmeldeanlage
Sprinkleranlage
Getrennte Sanitäreinrichtungen
7. OG
Teppichboden
Bodensteckdosen
Heizung und Klimaanlage
Fenster nicht öffenbar
Innenjalousie manuell
Deckenbeleuchtung
Dusche
3x Teeküche
Waschküche
24h Portierdienst
Zutrittskontrolle
Brandmeldeanlage
Sprinkleranlage
Getrennte Sanitäreinrichtungen
Teppichboden
Glaswände mit Glastüren
Bodensteckdosen
Deckenbeleuchtung
Teeküche
Heizung und Klimaanlage
24h Portierdienst
Zutrittskontrolle
Brandmeldeanlage
Sprinkleranlage
Getrennte Sanitäreinrichtungen
7. OG
Teppichboden
Bodensteckdosen
Heizung und Klimaanlage
Fenster nicht öffenbar
Innenjalousie manuell
Deckenbeleuchtung
Dusche
3x Teeküche
Waschküche
24h Portierdienst
Zutrittskontrolle
Brandmeldeanlage
Sprinkleranlage
Getrennte Sanitäreinrichtungen
Auswahl ändern
Anbieter

Anbieter
Andreas Polak-Evans
MG Real Estate GmbHTelefon
+43 676 607...

Anbieter kontaktieren