"Wohnoase Siebenbrunnengasse 44 - Kompakt trifft Komfort - Nachhaltig. Ruhig. Besonders."
1050 Wien, Margareten, Siebenbrunnengasse
















Objektinformation
Kosten
Kaufpreis€ 375.000
Kaufpreis / m²€ 8.939,21
Provision
3%
Vertragsart
, Kauf
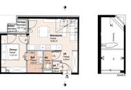
Wohnfläche
41,95 m2 (2 Zimmer)
Freifläche
, Balkon, Terrasse
Bauart
Neubau: 2026
Energie
HWB21,76 kWh/m²
HWB-KlasseA
fGEE0,67
fGEE-KlasseA+
Beschreibung
Siebenbrunnengasse 44 – Wo Geschichte auf modernes Wohnen trifft
AUS GESCHICHTEN WERDEN ZUHAUSE
An einem geschichtsträchtigen Ort im Herzen des 5. Bezirks entsteht ein Wohnprojekt, das Vergangenheit und Zukunft verbindet.
Die Siebenbrunnengasse 44 vereint urbanes Lebensgefühl mit hochwertigem Wohnkomfort – für Menschen, die mehr als nur eine Adresse suchen.
Benannt nach den 7 Brunnen, die Kaiser Ferdinand I. errichten ließ, um Wasser aus den Quellen Oberreinprechtsdorfs in die Stadt zu leiten.
67 exklusive Eigentumswohnungen mit durchdachten Grun..
AUS GESCHICHTEN WERDEN ZUHAUSE
An einem geschichtsträchtigen Ort im Herzen des 5. Bezirks entsteht ein Wohnprojekt, das Vergangenheit und Zukunft verbindet.
Die Siebenbrunnengasse 44 vereint urbanes Lebensgefühl mit hochwertigem Wohnkomfort – für Menschen, die mehr als nur eine Adresse suchen.
Benannt nach den 7 Brunnen, die Kaiser Ferdinand I. errichten ließ, um Wasser aus den Quellen Oberreinprechtsdorfs in die Stadt zu leiten.
67 exklusive Eigentumswohnungen mit durchdachten Grun..
Mehr
Weitere Preisinformationen
- Provision (netto)€ 11.250,00
- Provision (brutto)€ 13.500,00
Auswahl ändern
Anbieter

Anbieter
Vladimir Adamovic
J + P Immobilienmakler GmbHTelefon
+43 699 17 55...

Anbieter kontaktieren
Downloads zum Objekt
Virtuelle Besichtigung