Neues Projekt in der Schwarzelackenau beim Marchfeldkanal - noch 18 Einheiten verfügbar!
1210 Wien, Floridsdorf




Objektinformation
Kosten
Kaufpreis€ 545.000
Provision
3,60 € inkl. 20% USt.
Vertragsart
, Kauf
Wohnfläche
72,91 m2 (4 Zimmer)
Freifläche
, Garten (112,42m²), Terrasse
Bauart
Neubau
Energie
HWB37,3 kWh/m²
HWB-KlasseB
fGEE0,67
fGEE-KlasseA+
Beschreibung
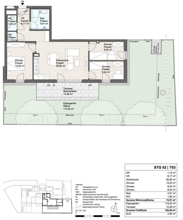
Stg. 2 Top 03 | 4 Zimmer | ca. 73 m² + ca. 127 m² Freifläche
Die ca. 73 m² große Wohnung bietet eine großzügige Wohnküche, 3 weitere Zimmer, eine ca. 14 m² große Terrasse sowie einen ca. 112 m² großen Eigengarten. Die Räume sind hell, mit großflächigen Fensterflächen ausgestattet und vielseitig nutzbar.
Raumaufteilung:
* Vorraum: ca. 5,84 m²
* Wohnküche: ca. 26,85 m²
* Zimmer: ca. 12,83 m²
* Zimmer: ca. 8,52 m²
* Zimmer: ca. 8,44 m²
* Abstellraum: ca. 1,30 m²
* WC: ca. 1,81 m²
* Bad: ca. 7,50 m²
* Terrasse: ca. 14,..
Die ca. 73 m² große Wohnung bietet eine großzügige Wohnküche, 3 weitere Zimmer, eine ca. 14 m² große Terrasse sowie einen ca. 112 m² großen Eigengarten. Die Räume sind hell, mit großflächigen Fensterflächen ausgestattet und vielseitig nutzbar.
Raumaufteilung:
* Vorraum: ca. 5,84 m²
* Wohnküche: ca. 26,85 m²
* Zimmer: ca. 12,83 m²
* Zimmer: ca. 8,52 m²
* Zimmer: ca. 8,44 m²
* Abstellraum: ca. 1,30 m²
* WC: ca. 1,81 m²
* Bad: ca. 7,50 m²
* Terrasse: ca. 14,..
Mehr
Lage
In der Nähe der großflächigen Grünzone der Schwarzlackenau entsteht ein exklusives Neubau-Wohnprojekt in ruhiger, naturnaher Umgebung
Dieses Projekt ist für alle, die Natur und Freizeit direkt vor der Haustür schätzen.
Naherholung am Wasser: Nur wenige Minuten bis zur Donauinsel, Neuen und Alten Donau – perfekte Bedingungen für Sport, Entspannung und Naturgenuss
Erholung & Freizeitsport: Schwimmen, Fischen, Segeln, Radfahren und Joggen – alles schnell erreichbar.
Nahversorger:
-Eurospar: ca. 750m
-Billa: ca. 800m
Öffentliche Verkehrsmittel:
-Bahnhof Wien Floridsdorf (U6, S1, S2, S3, S4, S7, Regionalzüge):
-Ist der wichtigste Verkehrsknotenpunkt im Bezirk. Mit den Buslinien 30A oder 31A erreicht man den Bahnhof in ca. 10–15 Minuten.
S-Bahn-Station Strebersdorf (S3, S4):
-Diese Station ist mit der Buslinie 32A gut erreichbar.
Dieses Projekt ist für alle, die Natur und Freizeit direkt vor der Haustür schätzen.
Naherholung am Wasser: Nur wenige Minuten bis zur Donauinsel, Neuen und Alten Donau – perfekte Bedingungen für Sport, Entspannung und Naturgenuss
Erholung & Freizeitsport: Schwimmen, Fischen, Segeln, Radfahren und Joggen – alles schnell erreichbar.
Nahversorger:
-Eurospar: ca. 750m
-Billa: ca. 800m
Öffentliche Verkehrsmittel:
-Bahnhof Wien Floridsdorf (U6, S1, S2, S3, S4, S7, Regionalzüge):
-Ist der wichtigste Verkehrsknotenpunkt im Bezirk. Mit den Buslinien 30A oder 31A erreicht man den Bahnhof in ca. 10–15 Minuten.
S-Bahn-Station Strebersdorf (S3, S4):
-Diese Station ist mit der Buslinie 32A gut erreichbar.
Auswahl ändern
Anbieter

Anbieter
Sebastian Scheuermann | Infina Partner
Infina ImmobilienTelefon
+436764...

Anbieter kontaktieren