Neues Projekt in der Schwarzelackenau beim Marchfeldkanal - noch 18 Einheiten verfügbar!
1210 Wien, Floridsdorf






Objektinformation
Kosten
Kaufpreis€ 575.000
Provision
3,60 € inkl. 20% USt.
Vertragsart
, Kauf
Wohnfläche
75,71 m2 (3 Zimmer)
Freifläche
, Balkon, Garten (158,4m²), Terrasse
Bauart
Neubau
Energie
HWB37,3 kWh/m²
HWB-KlasseB
fGEE0,67
fGEE-KlasseA+
Beschreibung
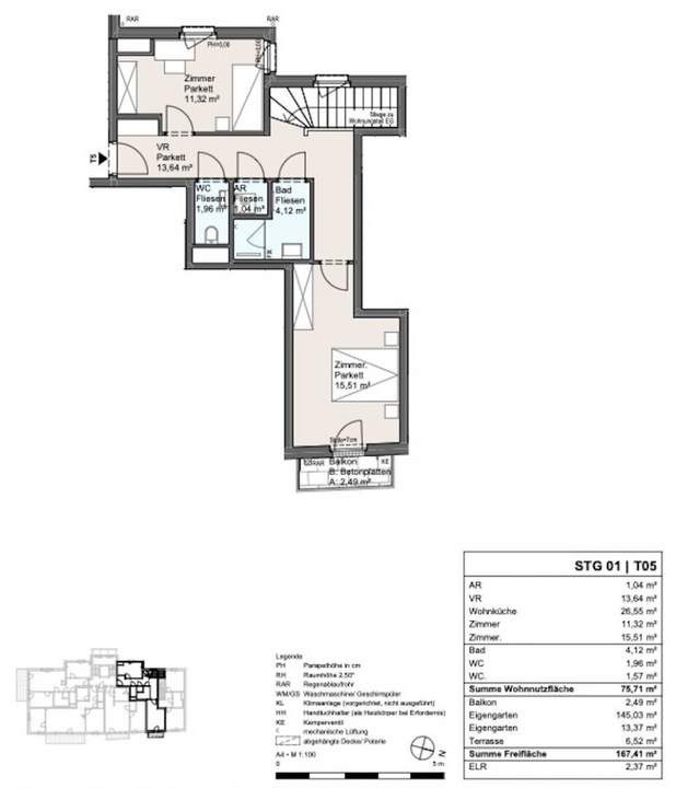
Top 05 | 3 Zimmer | ca. 76 m² + ca. 167m² Außenfläche
Die Gartenwohnung bietet ca. 76 m² Wohnfläche verteilt auf zwei Ebenen, eine ca. 7 m² große Terrasse mit anschließendem Eigengarten (ca. 158 m²) sowie einen Balkon im oberen Bereich. Die Wohnküche liegt im Erdgeschoß mit direktem Zugang zur Freifläche. Zwei der drei Zimmer befinden sich im ruhig gelegenen Obergeschoss.
Raumaufteilung:
Erdgeschoß:
* Wohnküche: ca. 26,55 m²
* WC: ca. 1,57 m²
* Terrasse: ca. 6,52 m²
* Eigengarten: ca. 158,40 m²
Obergeschoß:
* Vorraum: ca. 15,51 m²<..
Die Gartenwohnung bietet ca. 76 m² Wohnfläche verteilt auf zwei Ebenen, eine ca. 7 m² große Terrasse mit anschließendem Eigengarten (ca. 158 m²) sowie einen Balkon im oberen Bereich. Die Wohnküche liegt im Erdgeschoß mit direktem Zugang zur Freifläche. Zwei der drei Zimmer befinden sich im ruhig gelegenen Obergeschoss.
Raumaufteilung:
Erdgeschoß:
* Wohnküche: ca. 26,55 m²
* WC: ca. 1,57 m²
* Terrasse: ca. 6,52 m²
* Eigengarten: ca. 158,40 m²
Obergeschoß:
* Vorraum: ca. 15,51 m²<..
Mehr
Lage
In der Nähe der großflächigen Grünzone der Schwarzlackenau entsteht ein exklusives Neubau-Wohnprojekt in ruhiger, naturnaher Umgebung
Dieses Projekt ist für alle, die Natur und Freizeit direkt vor der Haustür schätzen.
Naherholung am Wasser: Nur wenige Minuten bis zur Donauinsel, Neuen und Alten Donau – perfekte Bedingungen für Sport, Entspannung und Naturgenuss
Erholung & Freizeitsport: Schwimmen, Fischen, Segeln, Radfahren und Joggen – alles schnell erreichbar.
Nahversorger:
-Eurospar: ca. 750m
-Billa: ca. 800m
Öffentliche Verkehrsmittel:
-Bahnhof Wien Floridsdorf (U6, S1, S2, S3, S4, S7, Regionalzüge):
-Ist der wichtigste Verkehrsknotenpunkt im Bezirk. Mit den Buslinien 30A oder 31A erreicht man den Bahnhof in ca. 10–15 Minuten.
S-Bahn-Station Strebersdorf (S3, S4):
-Diese Station ist mit der Buslinie 32A gut erreichbar.
Dieses Projekt ist für alle, die Natur und Freizeit direkt vor der Haustür schätzen.
Naherholung am Wasser: Nur wenige Minuten bis zur Donauinsel, Neuen und Alten Donau – perfekte Bedingungen für Sport, Entspannung und Naturgenuss
Erholung & Freizeitsport: Schwimmen, Fischen, Segeln, Radfahren und Joggen – alles schnell erreichbar.
Nahversorger:
-Eurospar: ca. 750m
-Billa: ca. 800m
Öffentliche Verkehrsmittel:
-Bahnhof Wien Floridsdorf (U6, S1, S2, S3, S4, S7, Regionalzüge):
-Ist der wichtigste Verkehrsknotenpunkt im Bezirk. Mit den Buslinien 30A oder 31A erreicht man den Bahnhof in ca. 10–15 Minuten.
S-Bahn-Station Strebersdorf (S3, S4):
-Diese Station ist mit der Buslinie 32A gut erreichbar.
Auswahl ändern
Anbieter

Anbieter
Sebastian Scheuermann | Infina Partner
Infina ImmobilienTelefon
+436764...

Anbieter kontaktieren