Neues Projekt in der Schwarzelackenau beim Marchfeldkanal - noch 17 Einheiten verfügbar!
1210 Wien, Floridsdorf




Objektinformation
Kosten
Kaufpreis€ 540.000
Provision
3,60 € inkl. 20% USt.
Vertragsart
, Kauf
Wohnfläche
73,4 m2 (3 Zimmer)
Freifläche
, Garten (91,36m²), Terrasse
Bauart
Neubau: 2026
Energie
HWB37,3 kWh/m²
HWB-KlasseB
fGEE0,67
fGEE-KlasseA+
Beschreibung
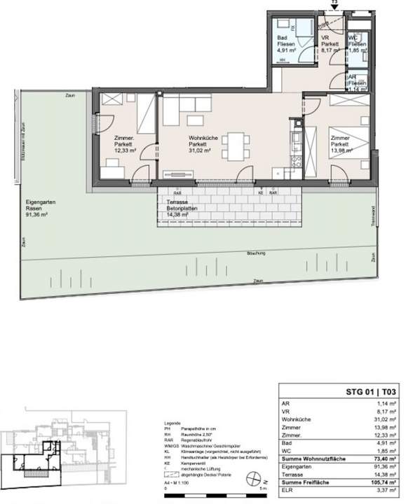
Top 03 I 3 Zimmer I ca. 74 m² + ca. 106 m² Freifläche
Die ca. 74 m² große Gartenwohnung verfügt über gesamt drei Zimmer. Die zentral gelegene Wohnküche öffnet sich direkt zur Terrasse und zum Eigengarten mit einer großzügigen Außenfläche von ca. 98 m². Die moderne Ausstattung sowie bodentiefe Fenstertüren in jedem Zimmer sorgen für ein helles, freundliches Wohngefühl.
Raumaufteilung:
* Abstellraum: ca. 1,14 m²
* Vorraum: ca. 8,17 m²
* Wohnküche: ca. 31,02 m²
* Zimmer: ca. 13,98 m²
* Zimmer: ca. 12,33 m²
* Bad: ca. 4,91 m²
* WC: ca. 1,85..
Die ca. 74 m² große Gartenwohnung verfügt über gesamt drei Zimmer. Die zentral gelegene Wohnküche öffnet sich direkt zur Terrasse und zum Eigengarten mit einer großzügigen Außenfläche von ca. 98 m². Die moderne Ausstattung sowie bodentiefe Fenstertüren in jedem Zimmer sorgen für ein helles, freundliches Wohngefühl.
Raumaufteilung:
* Abstellraum: ca. 1,14 m²
* Vorraum: ca. 8,17 m²
* Wohnküche: ca. 31,02 m²
* Zimmer: ca. 13,98 m²
* Zimmer: ca. 12,33 m²
* Bad: ca. 4,91 m²
* WC: ca. 1,85..
Mehr
Lage
In der Schwarzelackenau entsteht ein exklusives Neubau-Wohnprojekt in ruhiger, naturnaher Umgebung.
Dieses Projekt ist für alle, die Natur und Freizeit direkt vor der Haustür schätzen.
Naherholung am Wasser: Nur wenige Minuten bis zur Donauinsel, Neuen und Alten Donau – perfekte Bedingungen für Sport, Entspannung und Naturgenuss
Erholung & Freizeitsport: Schwimmen, Fischen, Segeln, Radfahren und Joggen – alles schnell erreichbar.
Nahversorger:
-Eurospar: ca. 750m
-Billa: ca. 800m
Öffentliche Verkehrsmittel:
-Bahnhof Wien Floridsdorf (U6, S1, S2, S3, S4, S7, Regionalzüge):
-Ist der wichtigste Verkehrsknotenpunkt im Bezirk. Mit den Buslinien 30A oder 31A erreicht man den Bahnhof in ca. 10–15 Minuten.
S-Bahn-Station Strebersdorf (S3, S4):
-Diese Station ist mit der Buslinie 32A gut erreichbar.
Dieses Projekt ist für alle, die Natur und Freizeit direkt vor der Haustür schätzen.
Naherholung am Wasser: Nur wenige Minuten bis zur Donauinsel, Neuen und Alten Donau – perfekte Bedingungen für Sport, Entspannung und Naturgenuss
Erholung & Freizeitsport: Schwimmen, Fischen, Segeln, Radfahren und Joggen – alles schnell erreichbar.
Nahversorger:
-Eurospar: ca. 750m
-Billa: ca. 800m
Öffentliche Verkehrsmittel:
-Bahnhof Wien Floridsdorf (U6, S1, S2, S3, S4, S7, Regionalzüge):
-Ist der wichtigste Verkehrsknotenpunkt im Bezirk. Mit den Buslinien 30A oder 31A erreicht man den Bahnhof in ca. 10–15 Minuten.
S-Bahn-Station Strebersdorf (S3, S4):
-Diese Station ist mit der Buslinie 32A gut erreichbar.
Auswahl ändern
Anbieter

Anbieter
Sebastian Scheuermann | Infina Partner
Infina ImmobilienTelefon
+436764...

Anbieter kontaktieren