2 Zimmerwohnungen mit großer Terrasse im 8. Stockwerk!
1200 Wien, Donaustadt, Handelskai






























Objektinformation
Kosten
Kaufpreis€ 435.000
Vertragsart
, Kauf
Wohnfläche
61,95 m2 (2 Zimmer)
Freifläche
, Terrasse
Objektart
Etagenwohnung
Beschreibung
Einzug erst im Juli 2026 möglich!
Exklusives Angebot – Wohnung mit großer Terrasse
Sind Sie auf der Suche nach etwas ganz Besonderem? Dann ist diese Immobilie genau das Richtige für Sie!
Lage & Ausrichtung: 22 m² Terrasse, Ost- und Nordseite ausgerichtet, im 8. Stock (Lift vorhanden).
Baujahr & Zustand: Das Haus wurde 2000 gebaut und befindet sich in gepflegtem Zustand. Es gibt 43 Parteien im Haus.
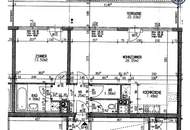
Raumaufteilung:
Vorzimmer mit Toilette auf der rechten Seite
Badezimmer mit Badewanne und Waschmaschinenanschluss auf der linken Seite
Schlafzimmer mit Ausgang auf di..
Exklusives Angebot – Wohnung mit großer Terrasse
Sind Sie auf der Suche nach etwas ganz Besonderem? Dann ist diese Immobilie genau das Richtige für Sie!
Lage & Ausrichtung: 22 m² Terrasse, Ost- und Nordseite ausgerichtet, im 8. Stock (Lift vorhanden).
Baujahr & Zustand: Das Haus wurde 2000 gebaut und befindet sich in gepflegtem Zustand. Es gibt 43 Parteien im Haus.
Raumaufteilung:
Vorzimmer mit Toilette auf der rechten Seite
Badezimmer mit Badewanne und Waschmaschinenanschluss auf der linken Seite
Schlafzimmer mit Ausgang auf di..
Mehr
Lage
Lagebeschreibung:
Die Wohnung befindet sich im 20. Wiener Gemeindebezirk an der Handelskai 102 und überzeugt durch eine hervorragende Infrastruktur und verkehrsgünstige Anbindung.
Öffentliche Verkehrsanbindung:
Die Gegend ist ideal an den öffentlichen Nahverkehr angebunden. In unmittelbarer Nähe befinden sich mehrere Bus- und Straßenbahnlinien, die eine schnelle Verbindung ins Stadtzentrum und in andere Bezirke gewährleisten. Auch die U-Bahn-Stationen der Linien U1 und U4 sind in wenigen Minuten erreichbar, sodass Sie flexibel und bequem unterwegs sind.
Nahversorgung und Einkaufsmöglichkeiten:
Für den täglichen Bedarf stehen zahlreiche Supermärkte, Lebensmittelläden und Drogerien in fußläufiger Entfernung zur Verfügung. Zudem bieten Einkaufszentren und Fachgeschäfte in der Umgebung eine breite Auswahl an Waren und Dienstleistungen.
Ärzte und medizinische Versorgung:
In der Umgebung befinden sich diverse Allgemeinärzte, Fachärzte sowie Apotheken, die eine schnelle medizinische Versorgung gewährleisten. Auch größere medizinische Einrichtungen und Krankenhäuser sind gut erreichbar.
Bildungseinrichtungen:
Die Gegend bietet ein vielfältiges Bildungsangebot mit Kindergärten, Volksschulen und weiterführenden Schulen. Damit eignet sich die Lage besonders für Familien mit Kindern.
Freizeit und Naherholung:
Die Nähe zur Donau und zu Grünanlagen ermöglicht sportliche Aktivitäten und entspannte Spaziergänge in der Natur. Restaurants, Cafés und Freizeiteinrichtungen runden das Angebot ab und machen den Bezirk zu einem lebenswerten Standort.
Die Wohnung befindet sich im 20. Wiener Gemeindebezirk an der Handelskai 102 und überzeugt durch eine hervorragende Infrastruktur und verkehrsgünstige Anbindung.
Öffentliche Verkehrsanbindung:
Die Gegend ist ideal an den öffentlichen Nahverkehr angebunden. In unmittelbarer Nähe befinden sich mehrere Bus- und Straßenbahnlinien, die eine schnelle Verbindung ins Stadtzentrum und in andere Bezirke gewährleisten. Auch die U-Bahn-Stationen der Linien U1 und U4 sind in wenigen Minuten erreichbar, sodass Sie flexibel und bequem unterwegs sind.
Nahversorgung und Einkaufsmöglichkeiten:
Für den täglichen Bedarf stehen zahlreiche Supermärkte, Lebensmittelläden und Drogerien in fußläufiger Entfernung zur Verfügung. Zudem bieten Einkaufszentren und Fachgeschäfte in der Umgebung eine breite Auswahl an Waren und Dienstleistungen.
Ärzte und medizinische Versorgung:
In der Umgebung befinden sich diverse Allgemeinärzte, Fachärzte sowie Apotheken, die eine schnelle medizinische Versorgung gewährleisten. Auch größere medizinische Einrichtungen und Krankenhäuser sind gut erreichbar.
Bildungseinrichtungen:
Die Gegend bietet ein vielfältiges Bildungsangebot mit Kindergärten, Volksschulen und weiterführenden Schulen. Damit eignet sich die Lage besonders für Familien mit Kindern.
Freizeit und Naherholung:
Die Nähe zur Donau und zu Grünanlagen ermöglicht sportliche Aktivitäten und entspannte Spaziergänge in der Natur. Restaurants, Cafés und Freizeiteinrichtungen runden das Angebot ab und machen den Bezirk zu einem lebenswerten Standort.
Ausstattung
Move-in possible only from July 2026!
Exclusive Offer – Apartment with Large Terrace
Are you looking for something truly special? Then this property is just right for you!
Location & Orientation: 22 m² terrace, facing east and north, on the 8th floor (elevator available).
Year Built & Condition: The building was constructed in 2000 and is in well-maintained condition. There are 43 units in the building.
Layout:
Entrance hall with a toilet on the right side
Bathroom with bathtub and washing machine connection on the left side
Bedroom with access to the large terrace
Spacious open-plan kitchen/living area with access to the terrace
Features: The apartment is air-conditioned and has district heating. All built-in furnishings remain in the apartment unless you wish otherwise.
Additional: The apartment includes a cellar storage unit.
This offer combines comfort, location, and generous living space – a rare opportunity!
Exclusive Offer – Apartment with Large Terrace
Are you looking for something truly special? Then this property is just right for you!
Location & Orientation: 22 m² terrace, facing east and north, on the 8th floor (elevator available).
Year Built & Condition: The building was constructed in 2000 and is in well-maintained condition. There are 43 units in the building.
Layout:
Entrance hall with a toilet on the right side
Bathroom with bathtub and washing machine connection on the left side
Bedroom with access to the large terrace
Spacious open-plan kitchen/living area with access to the terrace
Features: The apartment is air-conditioned and has district heating. All built-in furnishings remain in the apartment unless you wish otherwise.
Additional: The apartment includes a cellar storage unit.
This offer combines comfort, location, and generous living space – a rare opportunity!
Zusatzinformationen
Immobilienbewertung und Verkaufsangebot
Möchten Sie den aktuellen Marktwert Ihrer Immobilie ermitteln oder sind Sie auf der Suche nach einer passenden Immobilie? Wir bieten Ihnen eine unverbindliche und detaillierte Wertermittlung an und präsentieren Ihnen gerne diese Immobilie als potenzielles Kaufobjekt.
Rechtliche Hinweise
Bitte beachten Sie, dass zwischen uns ein wirtschaftliches Naheverhältnis besteht und wir in dieser Angelegenheit als Doppelmakler tätig sind.
Nebenkosten beim Immobilienkauf
Beim Erwerb einer Immobilie fallen die folgenden Nebenkosten an:
Grundbucheintragung: 1,1 % des Kaufpreises
Grunderwerbssteuer: 3,5 % des Kaufpreises
Kaufvertragskosten: 1 % zzgl. 20 % MwSt. sowie Barauslagen
Maklerprovision: 3 % zzgl. 20 % MwSt.
Sonderregelung bei Hauptwohnsitz:
Sollten Sie in der erworbenen Immobilie Ihren Hauptwohnsitz begründen, entfällt die Grundbucheintragung in Höhe von 1,1 %. Diese Regelung gilt jedoch nur, wenn Sie die Immobilie für mindestens 5 Jahre behalten. Sollte die Immobilie vor Ablauf dieser Frist veräußert werden, ist die Grundbucheintragung nachträglich zu entrichten.
Diese Sonderregelung gilt jedoch nur, wenn sie die Immobilie vor dem 1.Juli 2026 erwerben.
Für Rückfragen oder zur Vereinbarung eines Besichtigungstermins stehen wir Ihnen jederzeit gerne zur Verfügung.
Weitere Informationen sowie ein Kurzvideo der Immobilie finden Sie auf unserer Website: www.klasanimmobilien.at
Auswahl ändern
Anbieter

Anbieter
Katharina Klasan
KLASAN & Partner Immobilien GmbH & Co KGTelefon
00436643...

Anbieter kontaktieren