Baubeginn I direkt beim Park I wenige Minuten bis zur Donauinsel, Neuen und Alten Donau I
1210 Wien, Floridsdorf




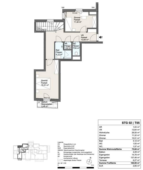
Objektinformation
Kosten
Kaufpreis€ 589.000
Kaufpreis / m²€ 6.955,60
Provision
3% des Kaufpreises zzgl. 20% USt.
Vertragsart
, Kauf
Wohnfläche
75,68 m2 (3 Zimmer)
Freifläche
, Balkon, Garten (156,51m²), Terrasse
Energie
HWB37,3 kWh/m²
HWB-KlasseB
fGEE0,67
fGEE-KlasseA+
Beschreibung
In der Schwarzelackenau beim Marchfeldkanal , in naturnaher Umgebung des 21. Bezirks, entsteht ein Neubauprojekt mit insgesamt 28 freifinanzierten Eigentumswohnungen. Das Projekt umfasst insgesamt zwei Stiegen, jeweils mit 2 bis 4 Zimmer Wohnungen und Wohnflächen zwischen ca. 37 m² und 105 m² – Alle Einheiten verfügen über Freiflächen in Form von Balkon, Terrasse oder einem Eigengarten.
Baustart – das ermöglicht Ihnen als Käufer, gemeinsam mit dem Architekten individuelle Anpassungen in der Raumgestaltung vorzunehmen und Ihre pers..
Baustart – das ermöglicht Ihnen als Käufer, gemeinsam mit dem Architekten individuelle Anpassungen in der Raumgestaltung vorzunehmen und Ihre pers..
Mehr
Lage
In der Schwarzelackenau entsteht ein exklusives Neubau-Wohnprojekt in ruhiger, naturnaher Umgebung. Dieses Projekt ist für alle, die Natur und Freizeit direkt vor der Haustür schätzen. Naherholung am Wasser: Nur wenige Minuten bis zur Donauinsel, Neuen und Alten Donau – perfekte Bedingungen für Sport, Entspannung und Naturgenuss
Erholung & Freizeitsport: Schwimmen, Fischen, Segeln, Radfahren und Joggen – alles schnell erreichbar.
Nahversorger:
-Eurospar: ca. 750m
-Billa: ca. 800m
Öffentliche Verkehrsmittel:
-Bahnhof Wien Floridsdorf (U6, S1, S2, S3, S4, S7, Regionalzüge):
-Ist der wichtigste Verkehrsknotenpunkt im Bezirk. Mit den Buslinien 30A oder 31A erreicht man den Bahnhof in ca. 10–15 Minuten.
S-Bahn-Station Strebersdorf (S3, S4):
-Diese Station ist mit der Buslinie 32A gut erreichbar.
Erholung & Freizeitsport: Schwimmen, Fischen, Segeln, Radfahren und Joggen – alles schnell erreichbar.
Nahversorger:
-Eurospar: ca. 750m
-Billa: ca. 800m
Öffentliche Verkehrsmittel:
-Bahnhof Wien Floridsdorf (U6, S1, S2, S3, S4, S7, Regionalzüge):
-Ist der wichtigste Verkehrsknotenpunkt im Bezirk. Mit den Buslinien 30A oder 31A erreicht man den Bahnhof in ca. 10–15 Minuten.
S-Bahn-Station Strebersdorf (S3, S4):
-Diese Station ist mit der Buslinie 32A gut erreichbar.
Auswahl ändern
Anbieter

Anbieter
Sebastian Scheuermann
Alexander Ringsmuth GmbHTelefon
+43 676 420...

Anbieter kontaktieren