dibeo.at
dibeo.at

Baubeginn I direkt beim Park I wenige Minuten bis zur Donauinsel, Neuen und Alten Donau I

1210 Wien, Floridsdorf

Baubeginn I direkt beim Park I wenige Minuten bis zur Donauinsel, Neuen und Alten Donau IBaubeginn I direkt beim Park I wenige Minuten bis zur Donauinsel, Neuen und Alten Donau I

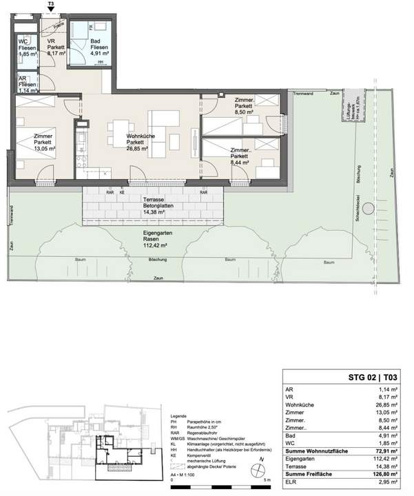
73,09 m²4 Zimmer€ 545.000

Finanzierung berechnen mit durchblicker
Zur Merkliste hinzufügen
Kosten
Kaufpreis€ 545.000
Kaufpreis / m²€ 6.230,71
Provision
3% des Kaufpreises zzgl. 20% USt.
Vertragsart
, Kauf
Wohnfläche
73,09 m2 (4 Zimmer)
Freifläche
, Garten (112,42m²), Terrasse
Energie
HWB37,3 kWh/m²
HWB-KlasseB
fGEE0,67
fGEE-KlasseA+
In der Schwarzelackenau beim Marchfeldkanal , in naturnaher Umgebung des 21. Bezirks, entsteht ein Neubauprojekt mit  insgesamt 28 freifinanzierten Eigentumswohnungen. Das Projekt umfasst insgesamt zwei Stiegen, jeweils mit 2 bis 4 Zimmer Wohnungen und Wohnflächen zwischen ca. 37 m² und 105 m²  – Alle Einheiten verfügen über Freiflächen in Form von Balkon, Terrasse oder einem Eigengarten.

Baustart – das ermöglicht Ihnen als Käufer, gemeinsam mit dem Architekten individuelle Anpassungen in der Raumgestaltung vorzunehmen und Ihre pers..
Kontaktieren Sie bitte den Anbieter für weitere Details zur Adresse.
In der Schwarzelackenau entsteht ein exklusives Neubau-Wohnprojekt in ruhiger, naturnaher Umgebung. Dieses Projekt ist für alle, die Natur und Freizeit direkt vor der Haustür schätzen. Naherholung am Wasser: Nur wenige Minuten bis zur Donauinsel, Neuen und Alten Donau – perfekte Bedingungen für Sport, Entspannung und Naturgenuss
Erholung & Freizeitsport: Schwimmen, Fischen, Segeln, Radfahren und Joggen – alles schnell erreichbar.

Nahversorger:
-Eurospar: ca. 750m
-Billa: ca. 800m

Öffentliche Verkehrsmittel:
-Bahnhof Wien Floridsdorf (U6, S1, S2, S3, S4, S7, Regionalzüge):
-Ist der wichtigste Verkehrsknotenpunkt im Bezirk. Mit den Buslinien 30A oder 31A erreicht man den Bahnhof in ca. 10–15 Minuten.

S-Bahn-Station Strebersdorf (S3, S4):
-Diese Station ist mit der Buslinie 32A gut erreichbar.
Zur Merkliste hinzufügen
Anbieter kontaktieren
Auswahl ändern
sebastianscheuermann
Anbieter

Sebastian Scheuermann

Alexander Ringsmuth GmbH
Telefon
+43 676 420...
Anbieter kontaktieren
Bitte um Zusendung von Unterlagen!
Bitte um einen Besichtigungstermin!
Bitte um einen Rückruf unter …
anrufen