dibeo.at
dibeo.at

Praktisch, modern, hell – ideal für Paare

1210 Wien, Floridsdorf

Praktisch, modern, hell – ideal für PaarePraktisch, modern, hell – ideal für PaarePraktisch, modern, hell – ideal für PaarePraktisch, modern, hell – ideal für PaarePraktisch, modern, hell – ideal für PaarePraktisch, modern, hell – ideal für PaarePraktisch, modern, hell – ideal für PaarePraktisch, modern, hell – ideal für Paare
Zur Merkliste hinzufügen
Kosten
Kaufpreis€ 280.000
Provision
3% des Kaufpreises zzgl. 20% USt.
Vertragsart
, Kauf
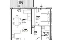
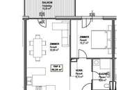
Wohnfläche
57,41 m2
Freifläche
, Terrasse
Bauart
Neubau: 2025
Verfügbar
ab sofort
Das Projekt umfasst die Errichtung einer modernen Wohnanlage mit insgesamt 12 Einheiten, die durch eine klare Architektur, hochwertige Bauweise und durchdachte Grundrisse überzeugen. Besonderes Augenmerk wurde auf großzügige Fensterflächen gelegt, die für helle Räume und eine angenehme Wohnatmosphäre sorgen. Jede Wohnung verfügt über private Freiflächen – sei es ein Balkon, eine Terrasse oder ein Eigengarten –, wodurch die Bewohner die Möglichkeit haben, ihren Wohnraum ins Freie zu erweitern und den Alltag mit einem Plus an Lebensqualität zu genießen.

Die Anlage bietet eine ideale Misch..
Kontaktieren Sie bitte den Anbieter für weitere Details zur Adresse.
Die Wohnanlage liegt in einer ruhigen, familienfreundlichen Umgebung mit sehr guter Infrastruktur. Schulen, Kindergärten und Betreuungseinrichtungen befinden sich in unmittelbarer Nähe, ebenso wie Spielplätze und Grünflächen für Kinder. Einkaufsmöglichkeiten, Apotheken und Geschäfte des täglichen Bedarfs sind schnell erreichbar und erleichtern den Alltag.

Die Anbindung an den öffentlichen Verkehr ist ausgezeichnet: Straßenbahn- und Buslinien sind in wenigen Gehminuten erreichbar und bieten direkte Verbindungen in die Innenstadt. Auch größere Verkehrsknotenpunkte liegen in kurzer Distanz, wodurch Arbeitswege und Familienausflüge unkompliziert möglich sind.

Die Lage verbindet urbanen Komfort mit einem ruhigen, familiengerechten Wohnumfeld – ideal für Eltern und Kinder gleichermaßen.
Zur Merkliste hinzufügen
Anbieter kontaktieren
Auswahl ändern
null
Anbieter

Josef Ahmed

AKKADIA Immobilienvermittlung GmbH
Telefon
+43 676 3...
Anbieter kontaktieren
Bitte um Zusendung von Unterlagen!
Bitte um einen Besichtigungstermin!
Bitte um einen Rückruf unter …
anrufen