Großzügiges, sonniges Einfamilienhaus mit 80m² Dachterrasse
2514 Traiskirchen





























Objektinformation
Kosten
Kaufpreis€ 730.000
Provision
26.280,00 € inkl. 20% USt.
Vertragsart
, Kauf
Wohnfläche
161,98 m2 (5 Zimmer)
Freifläche
, Garten (250m²), Terrasse (3)
Bauart
Neubau: 1970
Energie
HWB46 kWh/m²
HWB-KlasseB
fGEE0,77
fGEE-KlasseA
Energieausweis bis2027-10-05
Beschreibung
Aus Alt wird Neu - Dieses großzügige Einfamilienhaus, mit einer Wohnfläche von ca. 160m², aus dem Jahre 1970, wurde vollständig entkernt und 2024 auf den neuesten Stand der Technik gebracht!
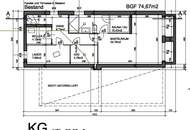
Über den Vorgarten führen ein paar Stufen zum Hauseingang und man betritt den Flur, von dem aus das ca. 34m² messende Wohnzimmer mit offen gehaltener Küche erreichbar ist sowie ein Zimmer, das Duschbad und separate WC. Sowohl vom Wohnraum aus als auch vom Zimmer aus kann man die ca. 22m² große Ost-Terrasse betreten.
In das Obergeschoß führt eine gemauerte Stieg auf die große Galerie von der a..
Über den Vorgarten führen ein paar Stufen zum Hauseingang und man betritt den Flur, von dem aus das ca. 34m² messende Wohnzimmer mit offen gehaltener Küche erreichbar ist sowie ein Zimmer, das Duschbad und separate WC. Sowohl vom Wohnraum aus als auch vom Zimmer aus kann man die ca. 22m² große Ost-Terrasse betreten.
In das Obergeschoß führt eine gemauerte Stieg auf die große Galerie von der a..
Mehr
Auswahl ändern
Anbieter

Anbieter
Elisabeth Bieber
Bieber Immobilien GmbHTelefon
+43 699 15 1...

Anbieter kontaktieren