Kapitalanlage ++ unbefristet vermietet ++ € 2.013,- pro Quadratmeter
1140 Wien, Penzing, Gurkgasse










Objektinformation
Kosten
Kaufpreis€ 149.000
Kaufpreis / m²€ 2.013,51
Betriebskosten (netto)€ 192,38
Provision
3 %
Vertragsart
, Kauf
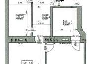
Wohnfläche
74 m2 (3 Zimmer)
Freifläche
, Terrasse
Bauart
Altbau: 1900
Energie
HWB88,9 kWh/m²
HWB-KlasseC
fGEE2,37
fGEE-KlasseD
Beschreibung
Der besondere Reiz eines Wiener Altbaus ist unvergleichlich. Eine Investition in eine liebevoll restaurierte, historische Immobilie ist nicht nur äußerst wertbeständig, sondern hilft auch, die einzigartige Bausubstanz dieser charakteristischen Zinshäuser zu bewahren.
Diese gemütliche 3-Zimmer-Wohnung mit ca. 74 m² Wohnfläche befindet sich im 3. Obergeschoss eines stilvollen Gründerzeithaus, welches 2000/2001 im Zuge des DG-Ausbaus umfassend saniert wurde.
Die Fakten:
*Unbefristet vermietet (keine Eigennutzung)
*historisches Gründerz..
Diese gemütliche 3-Zimmer-Wohnung mit ca. 74 m² Wohnfläche befindet sich im 3. Obergeschoss eines stilvollen Gründerzeithaus, welches 2000/2001 im Zuge des DG-Ausbaus umfassend saniert wurde.
Die Fakten:
*Unbefristet vermietet (keine Eigennutzung)
*historisches Gründerz..
Mehr
Auswahl ändern
Anbieter kontaktieren

