Unbefristete Dachgeschoßwohnung (mit Klimaanlage) mit Hofruhelage und Terrasse in der Flurschützstraße
1120 Wien, Meidling















66,19 m²2 Zimmer€ 1.252,27
Objektinformation
Kosten
Gesamtbelastung (brutto)€ 1.252,27
Gesamtbelastung (netto)€ 1.138,43
Summe Miete (netto)€ 900,00
Betriebskosten (netto)€ 209,69
Provision
Gemäß Erstauftraggeberprinzip bezahlt der Abgeber die Provision.
Kautionshinweis
€ 4.000,00
Vertragsart
, Miete
Wohnfläche
66,19 m2 (2 Zimmer)
Freifläche
, Terrasse
Energie
HWB149 kWh/m²
HWB-KlasseD
Beschreibung
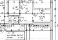
Zu Vermietung gelangt eine 66,19 m² große 2-Zimmer-Wohnung mit einer ruhigen Innenhof Terrasse. Die Wohnung befindet sich im Dachgeschoß mit Lift in einem gut gepflegten Altbau.
Man betritt das Objekt durch das Vorzimmer. Rechterhand findet man das Badezimmer, welches über ein Handwaschbecken sowie eine Badewanne verfügt und ausreichend Platz für eine Waschmaschine bietet. Eine Tür weiter findet sich ein separates WC. Links vom Vorzimmer betritt man die Küche. Aus der Küche geht es weiter auf die geräumige etwa 8m² große Terrasse mit Hofruhelage und Ausblick ins Grüne. Durch das Überque..
Man betritt das Objekt durch das Vorzimmer. Rechterhand findet man das Badezimmer, welches über ein Handwaschbecken sowie eine Badewanne verfügt und ausreichend Platz für eine Waschmaschine bietet. Eine Tür weiter findet sich ein separates WC. Links vom Vorzimmer betritt man die Küche. Aus der Küche geht es weiter auf die geräumige etwa 8m² große Terrasse mit Hofruhelage und Ausblick ins Grüne. Durch das Überque..
Mehr
Weitere Preisinformationen
- Sonstige Kosten€ 28,74
Lage
Station Marx Meidlinger Straße
Auswahl ändern
Anbieter

Anbieter
Christian Pohn
Mercato Immobilien GmbHTelefon
0699 196 ...

Anbieter kontaktieren