Jackpot für Bauträger! 910 m² erzielbare NFL + baubewilligt + Neubauprojekt + TOP-Lage + Ideale Grundrisse + West Ausrichtung + Viele Freiflächen!
1210 Wien, Floridsdorf, Herrenholzgasse













Objektinformation
Kosten
Kaufpreis€ 999.000
Kaufpreis / m²€ 1.097,80
Provision
3% des Kaufpreises zzgl. 20% USt.
Vertragsart
, Kauf
Grundstücksfläche
378 m2
Freifläche
, Garten (90m²)
Beschreibung
_Heute kaufen, morgen starten!_
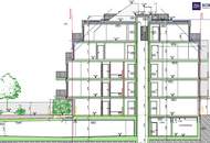
Dieses großartige und baubewilligte Projekt besticht durch attraktive Grundrisse, ideale Wohnungsgrößen, viele Freiflächen (Balkon, Terrassen, Gärten) eine geplante Tiefgarage sowie einer herausragenden Infrastruktur.
Facts/Flächenaufstellung:
+ Erzielbare Wohnfläche ca. 826,5 m²
+ Terrassen ca. 150,07 m²
+ Balkone ca. 32,60 m²
+ Loggia ca. 13,54 m²
+ Garten ca. 90,32 m²
+ Bereits baubewilligt
+ Share Deal möglich
Kaufpreis: € 999.000.-
In..
Dieses großartige und baubewilligte Projekt besticht durch attraktive Grundrisse, ideale Wohnungsgrößen, viele Freiflächen (Balkon, Terrassen, Gärten) eine geplante Tiefgarage sowie einer herausragenden Infrastruktur.
Facts/Flächenaufstellung:
+ Erzielbare Wohnfläche ca. 826,5 m²
+ Terrassen ca. 150,07 m²
+ Balkone ca. 32,60 m²
+ Loggia ca. 13,54 m²
+ Garten ca. 90,32 m²
+ Bereits baubewilligt
+ Share Deal möglich
Kaufpreis: € 999.000.-
In..
Mehr
Lage
Dieses perfekt geplante und bereits baubewilligte Neubauprojekt befindet sich in der Herrenholzgasse 35, einer ruhigen und dennoch hervorragend angebundenen Wohngegend im 21. Wiener Gemeindebezirk Floridsdorf. Diese Lage vereint das Beste aus urbanem Leben und naturnaher Erholung.
Die Umgebung zeichnet sich durch eine angenehme Wohnatmosphäre mit viel Grün und einer hervorragenden Infrastruktur aus. Einkaufsmöglichkeiten wie Supermärkte, Bäckereien und Apotheken sind in wenigen Minuten erreichbar. Zudem bietet die nahe gelegene Shopping Mall SCN (Shopping Center Nord) eine breite Auswahl an Geschäften, Gastronomiebetrieben und Freizeitmöglichkeiten.
Die öffentliche Verkehrsanbindung ist ausgezeichnet: Die Straßenbahnlinien 30 und 31 sowie mehrere Buslinien befinden sich in Gehweite und führen schnell zu zentralen Knotenpunkten wie dem Floridsdorfer Bahnhof. Von dort aus bestehen Verbindungen mit der U-Bahn-Linie U6 sowie Schnellbahn- und Regionalzügen, die eine schnelle Verbindung in die Innenstadt oder ins Umland gewährleisten. Mit dem Auto ist die Donauuferautobahn (A22) in wenigen Minuten erreichbar.
Zudem punktet die Lage mit einer Vielzahl an Freizeitmöglichkeiten. Der Marchfeldkanal und die Donauinsel, die beide in der Nähe liegen, laden zu Spaziergängen, Radfahren oder sportlichen Aktivitäten ein. Auch das Naherholungsgebiet Bisamberg ist mit dem Fahrrad oder Auto rasch erreichbar und bietet vielfältige Möglichkeiten für Wanderer und Naturliebhaber.
Familien profitieren von einer idealen Auswahl an Bildungseinrichtungen. Kindergärten, Volksschulen sowie weiterführende Schulen befinden sich in der näheren Umgebung.
Zusammengefasst bietet dieses Projekt eine ideale Kombination aus ruhigem Wohnen, bester Infrastruktur und vielfältigen Freizeitmöglichkeiten – eine perfekte Adresse für Familien, Paare und Singles, die das Leben in einer der lebenswertesten Städte Europas genießen möchten.
Die Umgebung zeichnet sich durch eine angenehme Wohnatmosphäre mit viel Grün und einer hervorragenden Infrastruktur aus. Einkaufsmöglichkeiten wie Supermärkte, Bäckereien und Apotheken sind in wenigen Minuten erreichbar. Zudem bietet die nahe gelegene Shopping Mall SCN (Shopping Center Nord) eine breite Auswahl an Geschäften, Gastronomiebetrieben und Freizeitmöglichkeiten.
Die öffentliche Verkehrsanbindung ist ausgezeichnet: Die Straßenbahnlinien 30 und 31 sowie mehrere Buslinien befinden sich in Gehweite und führen schnell zu zentralen Knotenpunkten wie dem Floridsdorfer Bahnhof. Von dort aus bestehen Verbindungen mit der U-Bahn-Linie U6 sowie Schnellbahn- und Regionalzügen, die eine schnelle Verbindung in die Innenstadt oder ins Umland gewährleisten. Mit dem Auto ist die Donauuferautobahn (A22) in wenigen Minuten erreichbar.
Zudem punktet die Lage mit einer Vielzahl an Freizeitmöglichkeiten. Der Marchfeldkanal und die Donauinsel, die beide in der Nähe liegen, laden zu Spaziergängen, Radfahren oder sportlichen Aktivitäten ein. Auch das Naherholungsgebiet Bisamberg ist mit dem Fahrrad oder Auto rasch erreichbar und bietet vielfältige Möglichkeiten für Wanderer und Naturliebhaber.
Familien profitieren von einer idealen Auswahl an Bildungseinrichtungen. Kindergärten, Volksschulen sowie weiterführende Schulen befinden sich in der näheren Umgebung.
Zusammengefasst bietet dieses Projekt eine ideale Kombination aus ruhigem Wohnen, bester Infrastruktur und vielfältigen Freizeitmöglichkeiten – eine perfekte Adresse für Familien, Paare und Singles, die das Leben in einer der lebenswertesten Städte Europas genießen möchten.
Auswahl ändern
Anbieter

Anbieter
Patrick Spreitzer, BA, MA
Schantl ITH Immobilientreuhand GmbHTelefon
0043 677 61...

Anbieter kontaktieren