Erstbezug! Doppelhaushälften in massiver Holzbauweise
2103 Langenzersdorf, An den Mühlen
top ad












Objektinformation
Kosten
Kaufpreis€ 484.000
Provision
3% des Kaufpreises zzgl. 20% USt.
Vertragsart
, Kauf
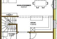
Wohnfläche
120,76 m2 (5 Zimmer)
Freifläche
, Garten (150,55m²), Terrasse
Objektart
Blockhaus
Bauart
Neubau: 2026
Beschreibung
Mit hervorragendem Preis-Leistungs-Verhältnis entstehen acht hochwertige Doppelhaushälften in Langenzersdorf mit günstiger monatlicher Pacht!
Projektbeschreibung
Nur wenige Minuten von Wien entfernt, werden in nachhaltiger Massivholzbauweise moderne Doppelhaushälften errichtet. Das Projekt vereint ökologisches Wohnen, moderne Architektur und höchsten Wohnkomfort – ideal für Familien und anspruchsvolle Paare.
Die durchdachte Bauweise, praktische Planung und hochwertige Ausstattung sorgen für ein gesundes Raumklima und energieeffizientes Wohnen auf höchstem Niveau...
Projektbeschreibung
Nur wenige Minuten von Wien entfernt, werden in nachhaltiger Massivholzbauweise moderne Doppelhaushälften errichtet. Das Projekt vereint ökologisches Wohnen, moderne Architektur und höchsten Wohnkomfort – ideal für Familien und anspruchsvolle Paare.
Die durchdachte Bauweise, praktische Planung und hochwertige Ausstattung sorgen für ein gesundes Raumklima und energieeffizientes Wohnen auf höchstem Niveau...
Mehr
Auswahl ändern
Anbieter

Anbieter
Mario Schmid
Ideal Real Immobilien GmbHTelefon
+43 676 424...

Anbieter kontaktieren
Downloads zum Objekt