Ihre neue Praxis im 8. Bezirk entsteht genau hier! Alles neu + perfekter Stil + barrierefrei!
1080 Wien, Josefstadt, Fuhrmannsgasse

















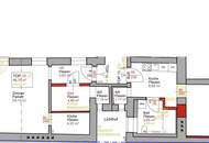
90 m²3 Räume€ 1.066.000
Objektinformation
Kosten
Kaufpreis€ 1.066.000
Kaufpreis / m²€ 11.844,44
Provision
3% des Kaufpreises zzgl. 20% USt.
Vertragsart
, Kauf
Nutzfläche
90 m2 (3 Zimmer)
Bauart
Altbau: 1900
Energie
HWB116,8 kWh/m²
HWB-KlasseD
fGEE2,05
fGEE-KlasseD
Energieausweis bis2034-12-14
Verfügbar
ab sofort
Beschreibung
Sie treten ein und werden sich rundum wohlfühlen! Worauf warten Sie noch?
Werfen Sie einen Blick auf dieses wunderschöne Gründerzeithaus und Sie werden Augen machen.
In ruhiger Lage, im Zentrum der Josefstadt gelegen, wurde einem Stilaltbau in perfekter Präzision und großer Liebe zu Details neues Leben eingehaucht. Im Zuge der Sanierung wurden die Altbauwohnungen rundum kernsaniert und erneuert, sowie das Dach mit 5 großzügigen Wohnungen ausgebaut. Hierbei wurde auf den Erhalt der Altbauelemente höchsten Wert gelegt. Angefangen von der gegliederten Fassade, we..
Werfen Sie einen Blick auf dieses wunderschöne Gründerzeithaus und Sie werden Augen machen.
In ruhiger Lage, im Zentrum der Josefstadt gelegen, wurde einem Stilaltbau in perfekter Präzision und großer Liebe zu Details neues Leben eingehaucht. Im Zuge der Sanierung wurden die Altbauwohnungen rundum kernsaniert und erneuert, sowie das Dach mit 5 großzügigen Wohnungen ausgebaut. Hierbei wurde auf den Erhalt der Altbauelemente höchsten Wert gelegt. Angefangen von der gegliederten Fassade, we..
Mehr
Lage
Ihre elegante neue Wohnung in 1080 Wien liegt in einer der begehrtesten Gegenden Wiens in Mitten des 8. Bezirks, der Josefstadt. In unmittelbarer Nähe befindet sich der Schönbornpark, eine grüne Oase für Spaziergänge und Entspannung. Die Umgebung zeichnet sich durch charmante Altbauten, diverse stilvolle Straßencafés, kleine Geschäfte und das Theater in der Josefstadt aus. Ein Grätzl mit einzigartigem Ruf und Charme, in dem man einfach gerne lebt.
Auch die Verkehrsanbindung ist als hervorragend zu bezeichnen. Zu den U-Bahn Linien der U6 und U3 sind es jeweils nur 2-3 Stationen mit der Straßenbahn. Die Straßenbahnlinie 2 hält in unmittelbarer Nähe in der Josefstädter Straße.
Insgesamt bietet diese Wohnung eine einzigartige Gelegenheit, das Wiener Stadt- sowie Kulturleben und den historischen Charme der so liebenswerten Josefstadt zu genießen. Mit ihrer erstklassigen Lage, der Nähe zu Parks, öffentlichen Verkehrsmitteln und Einkaufsmöglichkeiten ist es ein idealer Ort für ein komfortables und anspruchsvolles Leben in Wien.
Auch die Verkehrsanbindung ist als hervorragend zu bezeichnen. Zu den U-Bahn Linien der U6 und U3 sind es jeweils nur 2-3 Stationen mit der Straßenbahn. Die Straßenbahnlinie 2 hält in unmittelbarer Nähe in der Josefstädter Straße.
Insgesamt bietet diese Wohnung eine einzigartige Gelegenheit, das Wiener Stadt- sowie Kulturleben und den historischen Charme der so liebenswerten Josefstadt zu genießen. Mit ihrer erstklassigen Lage, der Nähe zu Parks, öffentlichen Verkehrsmitteln und Einkaufsmöglichkeiten ist es ein idealer Ort für ein komfortables und anspruchsvolles Leben in Wien.
Auswahl ändern
Anbieter

Anbieter
Mark Prettenthaler
Schantl ITH Immobilientreuhand GmbHTelefon
+43 650 56 ...

Anbieter kontaktieren
Downloads zum Objekt