Helle 2-Zimmer-Wohnung mit Balkon in ruhiger, sonniger Lage in Gutenberg, Nähe 8160 Weiz!
8160 Gutenberg-Stenzengreith














Objektinformation
Kosten
Kaufpreis€ 139.000
Betriebskosten (netto)€ 314,92
Provision
3.00 %
Vertragsart
, Kauf
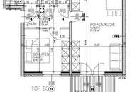
Wohnfläche
57,61 m2 (2 Zimmer)
Freifläche
, Balkon
Objektart
Etagenwohnung
Energie
HWB57,4 kWh/m²
HWB-KlasseC
fGEE0,74
fGEE-KlasseA
Beschreibung
Hier geht’s zur Online-Broschüre
Ihr neues Zuhause in Gutenberg – sonnig, ruhig & mit Wohlfühlcharakter
Hier geht’s zum Objektfilm
Diese charmante Wohnung im 1. Stock einer modernen Wohnhausanlage (Baujahr 2009) bietet auf rund 57 m² Wohnfläche ein gemütliches Zuhause in ruhiger, sonniger Lage – ideal zum Ankommen und Wohlfühlen.
Das Herzstück der Wohnung ist der lichtdurchflutete Wohn-Ess-Küchenbereich, von dem Sie direkt auf den Balkon gelangen. Hier genießen Sie entspannte Stunden, den Ausblick und viel Sonne. Ergänzt wird der durchdachte Grun..
Mehr
Weitere Preisinformationen
- MwSt. Satz20,00 %
- Heizkosten (netto)€ 65,24
Auswahl ändern
Anbieter

Anbieter
Waltraud Grabner
RE/MAX ClassicTelefon
+43 664 12 ...

Anbieter kontaktieren
Virtuelle Besichtigung