ATEMBERAUBENDER WEITBLICK - Dachgeschossmaisonette in Sackgassenlage
2380 Perchtoldsdorf















Objektinformation
Kosten
Kaufpreis€ 899.000
Provision
3% des Kaufpreises zzgl. 20% USt.
Vertragsart
, Kauf
Wohnfläche
144,5 m2 (6 Zimmer)
Freifläche
, Balkon, Terrasse
Objektart
Dachgeschosswohnung
Bauart
Neubau: 2016
Energie
HWB76,9 kWh/m²
HWB-KlasseC
fGEE0,88
fGEE-KlasseB
Energieausweis bis2033-11-12
Beschreibung
Mitten im Grünen liegt diese traumhafte Wohnung am Herzogberg, die ab sofort neue Besitzer sucht. Sie befindet sich in einem 2016 fertiggestellten Zwei-Parteien-Haus. Dieses erstreckt sich über drei Etagen und liegt in einer verkehrsberuhigten Sackgasse.
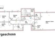
Die zweistöckige Architektenwohnung verfügt über eine perfekte Raumaufteilung. Vom Vorzimmer aus gelangt man in das lichtdurchflutete, offene Wohnzimmer mit Küche. Die drei Zimmer, welche als Schlaf-, Gäste- oder Arbeitszimmer ideal geeignet sind, liegen auf der Nordseite der Wohnung. Zwei davon führen auf einen schattigen Balkon...
Die zweistöckige Architektenwohnung verfügt über eine perfekte Raumaufteilung. Vom Vorzimmer aus gelangt man in das lichtdurchflutete, offene Wohnzimmer mit Küche. Die drei Zimmer, welche als Schlaf-, Gäste- oder Arbeitszimmer ideal geeignet sind, liegen auf der Nordseite der Wohnung. Zwei davon führen auf einen schattigen Balkon...
Mehr
Lage
Perchtoldsdorf und insbesondere der Herzogberg bietet beeindruckende Ausblicke über Weinberge, Wälder und Felder. Die Region um den Herzogberg lädt zu Wanderungen und Radtouren ein, besonders durch die malerischen Weinberge. Der nahegelegene Naturpark Föhrenberge bietet zahlreiche Wanderwege und eine reiche Flora und Fauna, ideal für Naturliebhaber. Außerdem ist der Weinort Perchtoldsdorf bekannt für seine Heurigen und kulturellen Veranstaltungen. Hier harmonieren Natur, Kultur und Freizeitmöglichkeiten auf wunderbare Weise.
Auswahl ändern
Anbieter

Anbieter
Lukas Schwaiger
APS Immobilien GmbHTelefon
+43 660 3...

Anbieter kontaktieren
Virtuelle Besichtigung