++ Charmante 4 Zimmer Eigentumswohnung mit 2 Tiefgaragenplätze in der Solarcity in Linz ++
4020 Linz

















Objektinformation
Kosten
Kaufpreis€ 365.000
Kaufpreis / m²€ 3.995,62
Nebenkosten€ 196,43
Provision
3 % des Kaufpreises zzgl. 20% USt.
Vertragsart
, Kauf
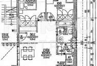
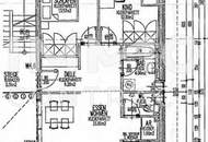
Wohnfläche
87,87 m2 (4 Zimmer)
Freifläche
, Loggia
Objektart
Etagenwohnung
Energie
HWB49,7 kWh/m²
HWB-KlasseB
fGEE0,75
fGEE-KlasseA
Energieausweis bis2033-09-24
Beschreibung
Willkommen in Ihrem neuen Zuhause in der Solarcity in Linz. Diese helle, charmante Eigentumswohnung bietet Ihnen auf ca. 91m² Nutzfläche ein komfortables Wohngefühl mit optimaler Raumaufteilung. Die im Jahr 2004 erbaute Immobilie überzeugt durch ihre durchdachte Aufteilung mit insgesamt vier Zimmern, die ausreichend Platz für die gesamte Familie bieten.
Die hochwertige Haka-Küche (Geräte von AEG inkl. Backrohr mit Dampfgarer), Baujahr 2017 ist im Preis inkludiert und bietet alles, was Sie für Ihre kulinarischen Kreationen benötigen. Im Badezimmer und im WC sorgen hochwertig verflieste..
Die hochwertige Haka-Küche (Geräte von AEG inkl. Backrohr mit Dampfgarer), Baujahr 2017 ist im Preis inkludiert und bietet alles, was Sie für Ihre kulinarischen Kreationen benötigen. Im Badezimmer und im WC sorgen hochwertig verflieste..
Mehr
Weitere Preisinformationen
- Heizkosten (netto)€ 72,00
- Heizkosten€ 72,00
Lage
Die Wohnung befindet sich in der Solarcity in Linz
Auswahl ändern
Anbieter

Anbieter
Klaus Egger, LL.M.
IMMOcontract Immobilien Vermittlung GmbHTelefon
0043676841...

Anbieter kontaktieren