Top-Lage in Gersthof: Modernes 2-Zimmer-Büro mit Terrasse und Kühlung
1180 Wien, Währing












56,18 m²3 Räume€ 999,87
Objektinformation
Kosten
Gesamtbelastung (netto)€ 999,87
Summe Miete (netto)€ 831,00
Betriebskosten (netto)€ 168,87
Provision
3 Bruttomonatsmieten zzgl. 20% USt.
Kautionshinweis
3 Bruttomonatsmieten
Vertragsart
, Miete , befristet
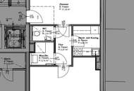
Nutzfläche
56,18 m2 (3 Zimmer)
Freifläche
, Terrasse
Bauart
Neubau: 2025
Energie
HWB37,8 kWh/m²
HWB-KlasseB
fGEE0,66
fGEE-KlasseA+
Energieausweis bis2034-01-11
Beschreibung
PROJEKTVORSTELLUNG
In bester Gersthofer Lage entstehen bis voraussichtlich September 2025 insgesamt 14 stilvoll ausgestattete Neubauwohnungen sowie 3 moderne Büroflächen zur Miete. Das Projekt vereint modernes Wohnen mit durchdachter Architektur, nachhaltiger Energieversorgung und hochwertiger Ausstattung.
Die Wohnungen mit einer Größe von ca. 55 m² bis 85 m² verfügen über drei Zimmer und bieten großzügige Grundrisse mit durchdachter Raumaufteilung. Beinahe jede Einheit verfügt über eine Freifläche in Form von Balkon oder Terrasse – für mehr Licht, Luft und Lebensqualität. D..
In bester Gersthofer Lage entstehen bis voraussichtlich September 2025 insgesamt 14 stilvoll ausgestattete Neubauwohnungen sowie 3 moderne Büroflächen zur Miete. Das Projekt vereint modernes Wohnen mit durchdachter Architektur, nachhaltiger Energieversorgung und hochwertiger Ausstattung.
Die Wohnungen mit einer Größe von ca. 55 m² bis 85 m² verfügen über drei Zimmer und bieten großzügige Grundrisse mit durchdachter Raumaufteilung. Beinahe jede Einheit verfügt über eine Freifläche in Form von Balkon oder Terrasse – für mehr Licht, Luft und Lebensqualität. D..
Mehr
Auswahl ändern
Anbieter

Anbieter
David Schober, MSc
EDEX Immobilien GmbHTelefon
+436763...

Anbieter kontaktieren