Unbefristet, vermietete 4-Zimmer-Wohnung - € 1.810,-/m²
1180 Wien, Währing, Lacknergasse











Objektinformation
Kosten
Kaufpreis€ 214.000
Kaufpreis / m²€ 1.810,49
Betriebskosten (netto)€ 319,14
Provision
3%
Vertragsart
, Kauf
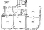
Wohnfläche
118,2 m2 (4 Zimmer)
Bauart
Altbau: 1900
Energie
HWB110,1 kWh/m²
HWB-KlasseD
fGEE2
fGEE-KlasseD
Beschreibung
Der Charme eines Wiener Altbaus ist einzigartig. Ihr Investment in eine sorgfältig sanierte, historische Immobilie ist nicht nur besonders wertstabil, sondern trägt auch dazu bei, die wertvolle Substanz dieser besonderen Zinshäuser zu erhalten.
Die ca. 118 m² große Wohnung liegt im 3. Obergeschoss eines gepflegten Gründerzeithauses, welches 2000 saniert und ausgebaut wurde. . Im Zuge dessen wurde auch das gesamte Gebäude umfassend saniert, inklusive Treppenhaus, Aufzug und Steigleitungen.
Bei den abgebildeten Fotos der Wohnung handelt es sich um Archivaufnahmen, weshalb di..
Die ca. 118 m² große Wohnung liegt im 3. Obergeschoss eines gepflegten Gründerzeithauses, welches 2000 saniert und ausgebaut wurde. . Im Zuge dessen wurde auch das gesamte Gebäude umfassend saniert, inklusive Treppenhaus, Aufzug und Steigleitungen.
Bei den abgebildeten Fotos der Wohnung handelt es sich um Archivaufnahmen, weshalb di..
Mehr
Auswahl ändern
Anbieter kontaktieren