ERSTBEZUG | Büro-Townhouse mit Eigengarten in ruhiger Innenhoflage | auch Wohn-Büro Kombination möglich
1160 Wien, Ottakring


























186,71 m²€ 2.419,29
Objektinformation
Kosten
Gesamtbelastung (netto)€ 2.419,29
Summe Miete (netto)€ 2.189,79
Betriebskosten (netto)€ 229,50
Kautionshinweis
3 Bruttomonatsmieten
Vertragsart
, Miete , befristet
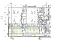
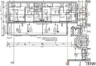
Nutzfläche
186,71 m2
Freifläche
, Garten (41,4m²), Terrasse (3)
Bauart
Neubau
Energie
HWB45,2 kWh/m²
HWB-KlasseB
fGEE0,94
fGEE-KlasseB
Beschreibung
Bitte beachten Sie, dass wir aufgrund der Nachweispflicht nur schriftliche Anfragen (Kontaktformular) mit vollständigen Angaben (Vor-, Zuname, Telefonnummer und E-Mailadresse) bearbeiten können.
Vermietet wird ab sofort ein Townhouse in ruhiger Innenhoflage mit einem vorgelagerten Eigengarten.
Das Haus wird vom Eigentümer als Büro, zu Wohnzwecken oder auch als Kombination vermietet.
HIGHLIGHTS
* Erstbezug
* Grünruhelage in einem Innenhof
* vorgelagerter Eigengarten
* Klima im DG
* Komb..
Vermietet wird ab sofort ein Townhouse in ruhiger Innenhoflage mit einem vorgelagerten Eigengarten.
Das Haus wird vom Eigentümer als Büro, zu Wohnzwecken oder auch als Kombination vermietet.
HIGHLIGHTS
* Erstbezug
* Grünruhelage in einem Innenhof
* vorgelagerter Eigengarten
* Klima im DG
* Komb..
Mehr
Auswahl ändern
Anbieter

Anbieter
Martin Dreisiebner
RIWOG Real Estate Management GmbHTelefon
+43 699 / 11 69...

Anbieter kontaktieren