Prestige Objekt: Großzügige und Moderne Maisonette Wohnung inmitten von Hartberg mit Lift und Dachterrasse
8230 Hartberg






















Objektinformation
Kosten
Kaufpreis€ 429.000
Vertragsart
, Kauf
Wohnfläche
120 m2
Objektart
Maisonette
Beschreibung
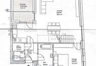
Über den Lift gelangen Sie barrierefrei direkt bis zur Wohnungsebene. Auf rund 120 m² Nutzfläche bietet die Wohnung ein helles, offenes Raumkonzept mit großzügigem Wohn-/Essbereich, moderner Küche und breiter Fensterfront, die für ein lichtdurchflutetes Ambiente sorgt.
Das untere Geschoss beherbergt einen Vorraum mit Einbaugarderobe, einen offenen Küchenbereich mit Loggia Ausgang, einen geräumigen Wohnbereich, ein Badezimmer mit Dusche und WC und ein zusätzliches Zimmer (Durchgangszimmer, derzeit Ankleide – ideal als Arbeitsraum oder Gästezimmer.
Im oberen Geschoss befinden sich zwei..
Das untere Geschoss beherbergt einen Vorraum mit Einbaugarderobe, einen offenen Küchenbereich mit Loggia Ausgang, einen geräumigen Wohnbereich, ein Badezimmer mit Dusche und WC und ein zusätzliches Zimmer (Durchgangszimmer, derzeit Ankleide – ideal als Arbeitsraum oder Gästezimmer.
Im oberen Geschoss befinden sich zwei..
Mehr
Weitere Preisinformationen
- Heizkosten enthaltenja
Auswahl ändern
Anbieter

Anbieter
Helena Kroisleitner
Lebenbauer & Sonnleitner ImmobilienserviceTelefon
06645...

Anbieter kontaktieren