TOP Fitnessstudiofläche im Business quartier TwentyONE
1210 Wien, Floridsdorf














1.200 m²€ 26.015,00
Objektinformation
Kosten
Gesamtbelastung (brutto)€ 26.015,00
Gesamtbelastung (netto)€ 22.000,00
Kaltmiete (netto)€ 18.150,00
Nebenkosten€ 3.850,00
Provision
3 Bruttomonatsmieten zzgl. 20% USt.
Vertragsart
, Miete , unbefristet
Nutzfläche
1.200 m2
Energie
HWB30,1 kWh/m²
HWB-KlasseB
fGEE0,63
Energieausweis bis2028-03-20
Beschreibung
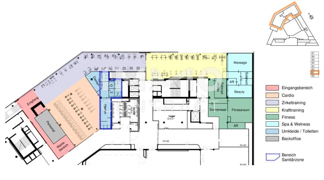
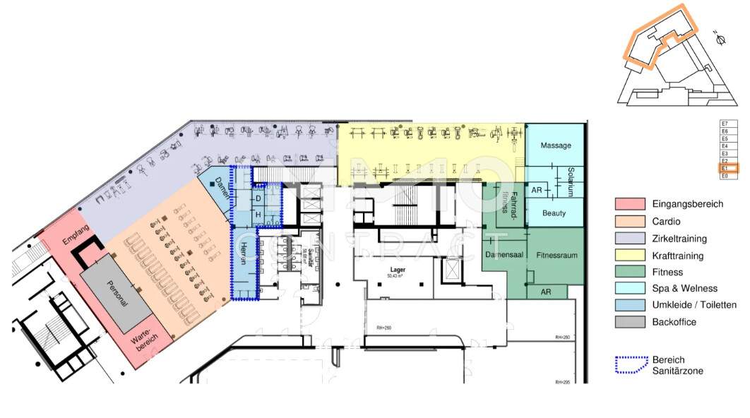
Diese Fitnessstudiofläche mit ca. 1.100,00m² befindet sich im 1.OG im Central Hub TwentyOne.
Der Standort in der Siemensstraße verfügt über eine sehr gute Infrastruktur vor Ort sowie optimale öffentliche Verkehrsanbindung.
Das TwentyOne besteht aus dem Innovation Hub und dem Central Hub, welche gesamteinheitlich als Ökosystem wirken. Der Innovation Hub ist sofort beziehbar und bietet die Büroflächen zu mieten an. Der Central Hub ist Anfang 2025 bezugsfertig.
Ausstattung und Vorteile:
großer Gestaltungsspielraum bei Ausarbeitung eines Konzepts
großzügige Schaufen..
Der Standort in der Siemensstraße verfügt über eine sehr gute Infrastruktur vor Ort sowie optimale öffentliche Verkehrsanbindung.
Das TwentyOne besteht aus dem Innovation Hub und dem Central Hub, welche gesamteinheitlich als Ökosystem wirken. Der Innovation Hub ist sofort beziehbar und bietet die Büroflächen zu mieten an. Der Central Hub ist Anfang 2025 bezugsfertig.
Ausstattung und Vorteile:
großer Gestaltungsspielraum bei Ausarbeitung eines Konzepts
großzügige Schaufen..
Mehr
Weitere Preisinformationen
- Hauptmietzins (netto)€ 18.150,00
- zzgl. MwSt.ja
Lage
Das Gewerbequartier TwentyOne im 21. Wiener Gemeindebezirk Floridsdorf zeichnet sich durch eine ausgezeichnete Lage aus, die sowohl für Unternehmen als auch für Mitarbeitende zahlreiche Vorteile bietet.
VERKEHRSANBINDUNG
Das Quartier befindet sich in unmittelbarer Nähe zur S-Bahn-Station Siemensstraße, die eine direkte Anbindung an zentrale Verkehrsknotenpunkte wie den Praterstern (12 Minuten), Wien-Mitte und den Hauptbahnhof ermöglicht. Auch der Flughafen Wien-Schwechat ist in etwa 40 Minuten erreichbar. Zusätzlich sind die U-Bahn-Stationen Leopoldau (U1) und Floridsdorf (U6) nur eine S-Bahn-Station entfernt, was eine schnelle Verbindung in die Innenstadt gewährleistet.
INFRASTRUKTUR UND NAHVERSORGUNG
Das TwentyOne liegt in einem dynamischen Umfeld mit namhaften Nachbarn wie Siemens Österreich AG, dem AIT Austrian Institute of Technology und der Klinik Floridsdorf. Diese Nähe fördert Synergien und Netzwerkmöglichkeiten. Zudem profitieren Unternehmen von einer gut ausgebauten Infrastruktur mit zahlreichen Einkaufsmöglichkeiten, Gastronomieangeboten und Freizeitmöglichkeiten im Projekt als auch in der Umgebung.
VERKEHRSANBINDUNG
Das Quartier befindet sich in unmittelbarer Nähe zur S-Bahn-Station Siemensstraße, die eine direkte Anbindung an zentrale Verkehrsknotenpunkte wie den Praterstern (12 Minuten), Wien-Mitte und den Hauptbahnhof ermöglicht. Auch der Flughafen Wien-Schwechat ist in etwa 40 Minuten erreichbar. Zusätzlich sind die U-Bahn-Stationen Leopoldau (U1) und Floridsdorf (U6) nur eine S-Bahn-Station entfernt, was eine schnelle Verbindung in die Innenstadt gewährleistet.
INFRASTRUKTUR UND NAHVERSORGUNG
Das TwentyOne liegt in einem dynamischen Umfeld mit namhaften Nachbarn wie Siemens Österreich AG, dem AIT Austrian Institute of Technology und der Klinik Floridsdorf. Diese Nähe fördert Synergien und Netzwerkmöglichkeiten. Zudem profitieren Unternehmen von einer gut ausgebauten Infrastruktur mit zahlreichen Einkaufsmöglichkeiten, Gastronomieangeboten und Freizeitmöglichkeiten im Projekt als auch in der Umgebung.
Auswahl ändern
Anbieter

Anbieter
Gottfried Bischof
IMMOcontract Immobilien Vermittlung GmbHTelefon
0043676841...

Anbieter kontaktieren