Büro/Praxisfläche- in exklusiver Lage zu verkaufen/zu vermieten
1120 Wien, Meidling





















360 m²€ 1.000.000
Objektinformation
Kosten
Kaufpreis€ 1.000.000
Betriebskosten (netto)€ 670,00
Provision
3% des Kaufpreises zzgl. 20% USt.
Vertragsart
, Kauf
Nutzfläche
360 m2
Bauart
Neubau: 1967
Energie
HWB121 kWh/m²
HWB-KlasseD
fGEE1,68
fGEE-KlasseC
Energieausweis bis2033-05-21
Verfügbar
ab sofort
Beschreibung
HOCHWERTIGE BÜRO/PRAXISFLÄCHE- IN EXKLUSIVER LAGE ZU VERKAUFEN/ZU VERMIETEN
Mitten im aufstrebenden 12. Wiener Gemeindebezirk – direkt bei der Meidlinger Hauptstraße – erwartet Sie eine exklusive Büro- oder Praxisfläche mit vielseitiger Nutzbarkeit und hervorragender Infrastruktur.
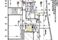
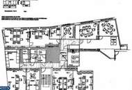
Die ca. 360 m² große Einheit liegt im 2. Obergeschoss eines modernisierten Gebäudes und ist bequem per Aufzug erreichbar. Der durchdachte Grundriss umfasst mehrere großzügige Bürozimmer, zwei beeindruckende Besprechungsräume mit stilvoller Glaswand und hochwertige Holzeinbauten für Stauraum und Archivi..
Mitten im aufstrebenden 12. Wiener Gemeindebezirk – direkt bei der Meidlinger Hauptstraße – erwartet Sie eine exklusive Büro- oder Praxisfläche mit vielseitiger Nutzbarkeit und hervorragender Infrastruktur.
Die ca. 360 m² große Einheit liegt im 2. Obergeschoss eines modernisierten Gebäudes und ist bequem per Aufzug erreichbar. Der durchdachte Grundriss umfasst mehrere großzügige Bürozimmer, zwei beeindruckende Besprechungsräume mit stilvoller Glaswand und hochwertige Holzeinbauten für Stauraum und Archivi..
Mehr
Weitere Preisinformationen
- Heizkosten (netto)€ 250,00
- Sonstige Kosten€ 259,65
Auswahl ändern
Anbieter

Anbieter
David Plishtiev
ADAMANT IMMOBILIEN GmbHTelefon
+43 664 46...

Anbieter kontaktieren