Weihnachten im neuen Haus
3384 Haunoldstein

Virtuelle Tour Nr. 1

















Objektinformation
Kosten
Kaufpreis€ 249.000
Nebenkosten€ 68,00
Provision
3% des Kaufpreises plus 20% USt.
Vertragsart
, Kauf
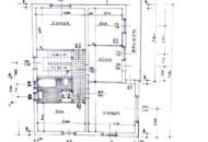
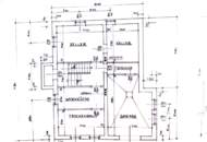
Wohnfläche
160,73 m2 (8 Zimmer)
Grundstück
723 m2
Freifläche
, Balkon, Terrasse
Energie
HWB165 kWh/m²
HWB-Klassee
fGEE2,03
fGEE-Klassed
Beschreibung
🎄 Weihnachten im neuen Haus? Kein Problem – einziehen und wohlfühlen!
Besichtigungen sind am Mittwoch, 29.10.2025 von 14.00 bis 16.00 Uhr möglich - Bitte um Anmeldung!!!
Dieses gemütliche Haus in ruhiger Siedlungslage in Haunoldstein - nähe Gr. Sierning bietet viel Platz für die ganze Familie – mit wunderschönem, ebenem Garten, Gartenhaus, Terrasse und Balkon.
Das Erdgeschoss wurde 2025 komplett saniert – inklusive neuer Kunststofffenster und moderner Küche (erst 3 Monate alt!).
Das Obergeschoss ist trocken, muss ab..
Mehr
Weitere Preisinformationen
- Provision (netto)€ 7.470,00
- Provision (brutto)€ 8.964,00
Auswahl ändern
Anbieter

Anbieter
Karin Plesiutschnig
RAIFFEISEN IMMOBILIEN VERMITTLUNG GMBHTelefon
+43 664 60 517 ...

Anbieter kontaktieren
Downloads zum Objekt
Virtuelle Besichtigung
