Erstbezug: Modernes 3-Zimmer-Büro mit Kühlung im 18. Bezirk
1180 Wien, Währing











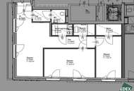
67,7 m²3 Räume€ 1.083,20
Objektinformation
Kosten
Gesamtbelastung (netto)€ 1.083,20
Summe Miete (netto)€ 880,10
Betriebskosten (netto)€ 203,10
Provision
3 Bruttomonatsmieten zzgl. 20% USt.
Kautionshinweis
3 Bruttomonatsmieten
Vertragsart
, Miete , befristet
Nutzfläche
67,7 m2 (3 Zimmer)
Bauart
Neubau: 2025
Energie
HWB37,8 kWh/m²
HWB-KlasseB
fGEE0,66
fGEE-KlasseA+
Energieausweis bis2034-01-11
Beschreibung
PROJEKTVORSTELLUNG
In bester Gersthofer Lage entstehen bis voraussichtlich September 2025 insgesamt 14 stilvoll ausgestattete Neubauwohnungen sowie 3 moderne Büroflächen zur Miete. Das Projekt vereint modernes Wohnen mit durchdachter Architektur, nachhaltiger Energieversorgung und hochwertiger Ausstattung.
Die Wohnungen mit einer Größe von ca. 55 m² bis 85 m² verfügen über drei Zimmer und bieten großzügige Grundrisse mit durchdachter Raumaufteilung. Beinahe jede Einheit verfügt über eine Freifläche in Form von Balkon oder Terrasse – für mehr Licht, Luft und Lebensqualität. D..
In bester Gersthofer Lage entstehen bis voraussichtlich September 2025 insgesamt 14 stilvoll ausgestattete Neubauwohnungen sowie 3 moderne Büroflächen zur Miete. Das Projekt vereint modernes Wohnen mit durchdachter Architektur, nachhaltiger Energieversorgung und hochwertiger Ausstattung.
Die Wohnungen mit einer Größe von ca. 55 m² bis 85 m² verfügen über drei Zimmer und bieten großzügige Grundrisse mit durchdachter Raumaufteilung. Beinahe jede Einheit verfügt über eine Freifläche in Form von Balkon oder Terrasse – für mehr Licht, Luft und Lebensqualität. D..
Mehr
Auswahl ändern
Anbieter

Anbieter
David Schober, MSc
EDEX Immobilien GmbHTelefon
+436763...

Anbieter kontaktieren