Urbaner Wohnkomfort im 2. Bezirk – inklusive großzügiger Loggia!
1020 Wien, Leopoldstadt























80 m²2 Zimmer€ 1.645,00
Objektinformation
Kosten
Gesamtbelastung (brutto)€ 1.645,00
Gesamtbelastung (netto)€ 1.495,45
Summe Miete (netto)€ 1.361,96
Betriebskosten (netto)€ 133,49
Kautionshinweis
€ 4.950,00
Vertragsart
, Miete , befristet
Wohnfläche
80 m2 (2 Zimmer)
Freifläche
, Loggia
Objektart
Etagenwohnung
Bauart
Neubau: 2019
Energie
HWB29,7 kWh/m²
HWB-KlasseB
fGEE1,01
Beschreibung
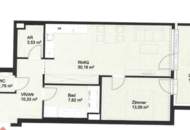
Zur Vermietung gelangt eine wunderschöne, großzügig aufgeteilte 2-Zimmer-Wohnung mit 77,16m² Nutzfläche, davon 10,67m² ostseitig orientierte Loggia in einem hochwertig errichteten, top-modernen Neubau (Baujahr 2019) im 2. Bezirk in der Pazmanitengasse in sensationeller Lage nahe Prater und Augarten.
Die Wohnung befindet sich im 1. OG und ist komplett zum Innenhof ausgerichtet (kein Fenster zur Straße). Ein großzügiger Aufzug ist selbstverständlich vorhanden.
BEI DEN FOTOS HANDELT ES SICH UM REFERENZFOTOS einer ausstattungs- und grundrissgleichen Wohnung aus dem selben Haus. Das h..
Die Wohnung befindet sich im 1. OG und ist komplett zum Innenhof ausgerichtet (kein Fenster zur Straße). Ein großzügiger Aufzug ist selbstverständlich vorhanden.
BEI DEN FOTOS HANDELT ES SICH UM REFERENZFOTOS einer ausstattungs- und grundrissgleichen Wohnung aus dem selben Haus. Das h..
Mehr
Auswahl ändern
Anbieter

Anbieter
Kerstin Fried
Hubner Immobilien GmbHTelefon
+43 664 88 7...

Anbieter kontaktieren