Mixed-Use-Investment: Ein Objekt, viele Konzepte, starke Rendite
5110 Oberndorf bei Salzburg


















Preis auf Anfrage
Objektinformation
Kosten
Preis auf Anfrage
Provision
3 % zzgl. 20% USt.
Vertragsart
,  Kauf 
Nutzfläche
keine Angabe
Energie
HWB45 kWh/m²
HWB-KlasseB
fGEE1,01
fGEE-KlasseC
Energieausweis bis2025-12-13
 Beschreibung 
Dieses Wohnhaus mit insgesamt 13 Wohneinheiten ist ein echtes Fundstück für Investoren und Anleger, die Chancen lieber nutzen als verpassen. Bereits mehr als die Hälfte der Wohnungen sind verkauft – aktuell stehen nur noch 4 bis 6 Einheiten zur Verfügung.
- Flexible Kaufkonzepte – Sie entscheiden, ob Sie sofort einziehen oder die Edelrohbauwohnungen selbst ausbauen
- Preise, die mit Ihren Wünschen mitwachsen – hier zahlt sich Flexibilität aus
- Persönliche Beratung? Selbstverständlich – wir finden mit Ihnen zusammen die perfekte Lösung
- In der Region herrscht hohe ..
- Flexible Kaufkonzepte – Sie entscheiden, ob Sie sofort einziehen oder die Edelrohbauwohnungen selbst ausbauen
- Preise, die mit Ihren Wünschen mitwachsen – hier zahlt sich Flexibilität aus
- Persönliche Beratung? Selbstverständlich – wir finden mit Ihnen zusammen die perfekte Lösung
- In der Region herrscht hohe ..
 Mehr 
Lage
Das Objekt direkt am Kirchplatz bietet eine zentrale und gut erreichbare Lage. In unmittelbarer Nähe befinden sich diverse Geschäfte und Dienstleister. Die Nähe zu Salzburg- sowohl mit dem Auto, als auch mit naheliegenden öffentlichen Verkehrsmitteln erreichbar (Lokalbahn, Bus) -macht diesen Standort besonders attraktiv
Ausstattung
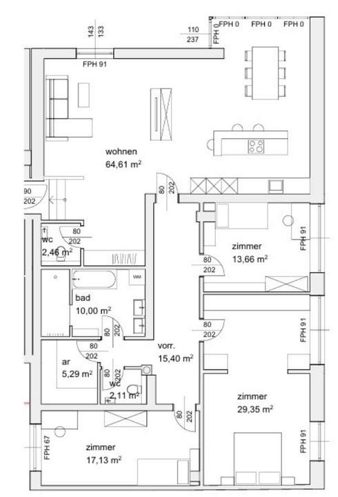
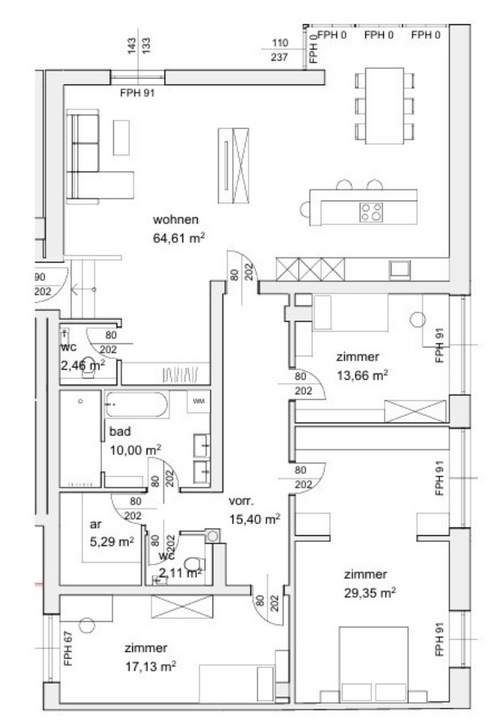
57 m2 mit großer Fensterfläche im 1. OG
95 m2 mit großem Balkon im 2. OG
70 m2 mit Terrasse und Garten im Edelrohbauzustand im EG
125 m2 mit Panoramaterrasse im DG
160 m2 im Edelrohbauzustand kann aufgeteilt werden in 2 Wohnungen im 2.OG
95 m2 mit großem Balkon im 2. OG
70 m2 mit Terrasse und Garten im Edelrohbauzustand im EG
125 m2 mit Panoramaterrasse im DG
160 m2 im Edelrohbauzustand kann aufgeteilt werden in 2 Wohnungen im 2.OG
Zusatzinformationen
Zusätzliche Besonderheiten entdecken Sie am besten bei einem Rundgang – 
ich freue mich auf Ihre Anfrage!
Auswahl ändern
Anbieter

Anbieter
Nina Krämer
M & R Immobilien OGTelefon
00436644...

Anbieter kontaktieren
 
  