Vielseitiges Einfamilienhaus mit Pool, Garagen und großem Potenzial in Leibnitz
8430 Leibnitz, Grazer Gasse





















Objektinformation
Kosten
Preis auf Anfrage
Provision
3.00 %
Vertragsart
,  Kauf 
Wohnfläche
166 m2 (6 Zimmer) 
Grundstück
 592 m2
Freifläche
, Terrasse
Energie
HWB222 kWh/m²
HWB-KlasseF
fGEE2,85
fGEE-KlasseE
Verfügbar
 ab sofort 
 Beschreibung 
Dieses charmante Einfamilienhaus im Herzen der Südsteiermark verbindet historischen Charakter mit moderner Ausstattung.
Mit einer Wohnfläche von ca. 166 m² auf zwei Ebenen und einem Grundstück von rund 590 m² bietet es sowohl Familien als auch Freiberuflern zahlreiche Möglichkeiten – vom gemütlichen Zuhause bis hin zur Kanzlei, Praxis oder Büro.
Die im Jahr 1895 errichtete Liegenschaft wurde zuletzt 2011 renoviert und präsentiert sich heute in einem gepflegten Zustand mit viel Raum für individuelle Gestaltung.
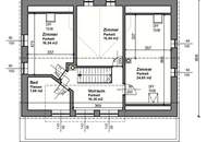
Raumaufteilung
Erdgeschoss: Küche mit Speis, großzügiges Wohnzimmer mit ..
Mit einer Wohnfläche von ca. 166 m² auf zwei Ebenen und einem Grundstück von rund 590 m² bietet es sowohl Familien als auch Freiberuflern zahlreiche Möglichkeiten – vom gemütlichen Zuhause bis hin zur Kanzlei, Praxis oder Büro.
Die im Jahr 1895 errichtete Liegenschaft wurde zuletzt 2011 renoviert und präsentiert sich heute in einem gepflegten Zustand mit viel Raum für individuelle Gestaltung.
Raumaufteilung
Erdgeschoss: Küche mit Speis, großzügiges Wohnzimmer mit ..
 Mehr 
Weitere Preisinformationen
- MwSt. Satz20,00 %
- Sonstige PreisangabenVerhandlungsbasis
Auswahl ändern
Anbieter

Anbieter
Paul Ulbel
RE/MAX LeibnitzTelefon
+0677 61...

Anbieter kontaktieren
 
  