Kanzlei, Praxis oder Bürogebäude gesucht in Leibnitz gesucht ?
8430 Leibnitz, Grazergasse





















166 m²6 RäumePreis auf Anfrage
Objektinformation
Kosten
Preis auf Anfrage
Provision
3.00 %
Vertragsart
, Kauf
Nutzfläche
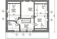
166 m2 (6 Zimmer)
Grundstück
592 m2
Freifläche
, Terrasse
Energie
HWB222 kWh/m²
HWB-KlasseF
fGEE2,85
fGEE-KlasseE
Verfügbar
ab sofort
Beschreibung
Stilvolle Kanzlei-, Praxis- oder Büroimmobilie mit Charme & Vielseitigkeit in Leibnitz!
Willkommen an einem Ort, an dem Geschichte auf moderne Arbeitswelt trifft. Dieses außergewöhnliche Objekt im Herzen von Leibnitz bietet mit rund 155 m² Nutzfläche auf zwei Ebenen großzügige Räume für professionelles Arbeiten in einem warmen, einladenden Ambiente.
Ob Kanzlei, Ordination, Therapiezentrum oder Beratungsstandort, diese Immobilie schafft den idealen Rahmen, um Klientinnen und Klienten in ruhiger und wertiger Atmosphäre zu empfangen.
Ursprünglich 1895 errichtet und 2011 modernisiert,..
Willkommen an einem Ort, an dem Geschichte auf moderne Arbeitswelt trifft. Dieses außergewöhnliche Objekt im Herzen von Leibnitz bietet mit rund 155 m² Nutzfläche auf zwei Ebenen großzügige Räume für professionelles Arbeiten in einem warmen, einladenden Ambiente.
Ob Kanzlei, Ordination, Therapiezentrum oder Beratungsstandort, diese Immobilie schafft den idealen Rahmen, um Klientinnen und Klienten in ruhiger und wertiger Atmosphäre zu empfangen.
Ursprünglich 1895 errichtet und 2011 modernisiert,..
Mehr
Weitere Preisinformationen
- MwSt. Satz20,00 %
- Sonstige PreisangabenVerhandlungsbasis
Auswahl ändern
Anbieter

Anbieter
Paul Ulbel
RE/MAX LeibnitzTelefon
+0677 61...

Anbieter kontaktieren