Architekten Juwel mit großer Terrasse im historischen Zentrum von Grinzing
1190 Wien, Döbling




















Objektinformation
Kosten
Kaufpreis€ 1.390.000
Betriebskosten (netto)€ 286,44
Provision
3% des Kaufpreises zzgl. 20% USt.
Vertragsart
, Kauf
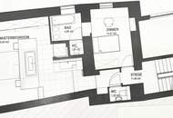
Wohnfläche
153,4 m2 (3 Zimmer)
Freifläche
, Terrasse
Bauart
Altbau
Energie
HWB72,9 kWh/m²
HWB-KlasseC
fGEE1,38
fGEE-KlasseC
Energieausweis bis2029-12-19
Verfügbar
ab sofort
Beschreibung
WER DAS BESONDERE SUCHT IST HIER RICHTIG!
ARCHITEKTEN JUWEL IN EHEMALIGEM HEURIGEN ENSEMBLE MIT GROSSER TERRASSE IM HISTORISCHEN ZENTRUM VON GRINZING
Die Wohnung befindet sich in einem ehemaligen Winzerhaus von ca. 1670 mitten im historischen Ortskern von Grinzing. Das historische Heurigen-Ensemble wurde 2009 vom Architektur-Büro BWM für eine Wohnnutzung hochwertig generalsaniert und mit einem Zubau erweitert. Das gesamte denkmalgeschützte Ensemble bietet neben der fanstastischen Lage eine einzigartige Atmosphäre.
Schon der Zugang in den Innenhof ist beeindruckend - Altes..
ARCHITEKTEN JUWEL IN EHEMALIGEM HEURIGEN ENSEMBLE MIT GROSSER TERRASSE IM HISTORISCHEN ZENTRUM VON GRINZING
Die Wohnung befindet sich in einem ehemaligen Winzerhaus von ca. 1670 mitten im historischen Ortskern von Grinzing. Das historische Heurigen-Ensemble wurde 2009 vom Architektur-Büro BWM für eine Wohnnutzung hochwertig generalsaniert und mit einem Zubau erweitert. Das gesamte denkmalgeschützte Ensemble bietet neben der fanstastischen Lage eine einzigartige Atmosphäre.
Schon der Zugang in den Innenhof ist beeindruckend - Altes..
Mehr
Weitere Preisinformationen
- Sonstige Kosten€ 154,00
Auswahl ändern
Anbieter

Anbieter
Claudia Bonk
IMMO AGENCY GmbHTelefon
+43 699 19 47...

Anbieter kontaktieren