Ein Zuhause mit Stil, Nachhaltigkeit und Weitblick
1230 Wien, Liesing

Objektinformation
Kosten
Kaufpreis€ 294.643
Betriebskosten (netto)€ 141,90
Provision
Provision bezahlt der Abgeber.
Vertragsart
, Kauf
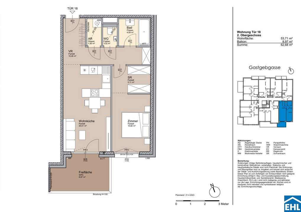
Wohnfläche
53,71 m2 (2 Zimmer)
Freifläche
, Balkon
Bauart
Neubau: 2024
Energie
HWB26,5 kWh/m²
HWB-KlasseB
fGEE0,74
fGEE-KlasseA
Energieausweis bis2031-03-18
Verfügbar
ab sofort
Beschreibung
EIN INVESTMENT MIT STIL UND VERANTWORTUNG
Zeitlos. Nachhaltig. Wertbeständig.
Das Wohnprojekt beim Stadtpark Atzgersdorf und der Liesing vereint architektonische Eleganz mit zukunftsorientierter Bauweise – und bietet Anleger:innen die Möglichkeit, in eine Immobilie mit hervorragendem Entwicklungspotenzial zu investieren.
Auf fünf Etagen und zwei Dachgeschossen entstehen 38 hochwertige Eigentumswohnungen, die durch nachhaltige Bauweise, klare Architektur und intelligente Grundrisse überzeugen. Das Projekt kombiniert urbanen Lifestyle mit ökologischer Verantwortung – eine Kombin..
Zeitlos. Nachhaltig. Wertbeständig.
Das Wohnprojekt beim Stadtpark Atzgersdorf und der Liesing vereint architektonische Eleganz mit zukunftsorientierter Bauweise – und bietet Anleger:innen die Möglichkeit, in eine Immobilie mit hervorragendem Entwicklungspotenzial zu investieren.
Auf fünf Etagen und zwei Dachgeschossen entstehen 38 hochwertige Eigentumswohnungen, die durch nachhaltige Bauweise, klare Architektur und intelligente Grundrisse überzeugen. Das Projekt kombiniert urbanen Lifestyle mit ökologischer Verantwortung – eine Kombin..
Mehr
Weitere Preisinformationen
- Sonstige Kosten€ 5,50
Auswahl ändern
Anbieter

Anbieter
Andrea PÖCHHACKER; MSc
EHL Wohnen GmbHTelefon
+43664 83 ...

Anbieter kontaktieren
Downloads zum Objekt