2-Zimmer-Wohnung mit Balkon und herrlichem Blick ins Grüne - Hietzinger Hauptstraße ums Eck
1130 Wien, Hietzing, Feldmühlgasse














56,19 m²2 Zimmer€ 1.089,33
Objektinformation
Kosten
Gesamtbelastung (brutto)€ 1.089,33
Gesamtbelastung (netto)€ 990,30
Summe Miete (netto)€ 877,00
Miete / m²€ 15,61
Betriebskosten (netto)€ 113,30
Kautionshinweis
€ 3.500,00
Vertragsart
, Miete , befristet
Wohnfläche
56,19 m2 (2 Zimmer)
Freifläche
, Balkon
Bauart
Neubau: 2004
Energie
HWB49,1 kWh/m²
HWB-KlasseB
fGEE1,1
fGEE-KlasseC
Beschreibung
Zur Anmietung nach Absprache steht diese super aufgeteilte 2-Zimmer-Wohnung in der Feldmühlgasse 9 im 13. Bezirk, für Sie bereit.
Bitte beachten Sie, dass die Fotos aus dem Archiv stammen, aus Rücksicht auf die derzeitigen Mieter.
Da die Wohnung noch bewohnt ist, müssen wir uns mit Terminen ein wenig gedulden.
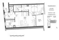
Die ca. 56 m² große Wohnung im 1. Obergeschoss eines gepflegten Neubaus umfasst einen Vorraum, eine Wohnküche, ein Schlafzimmer, ein Badezimmer und eine separate Toilette.
Einige H..
Mehr
Weitere Preisinformationen
- Sonstige PreisangabenAbwicklung und Durchführung Mietvertrag: € 360,-
- Hauptmietzins (netto)€ 877,00
Auswahl ändern
Anbieter kontaktieren

