Wohnen über den Dächern von Döbling
1190 Wien, Döbling, Sickenberggasse
























Objektinformation
Kosten
Kaufpreis€ 1.980.000
Betriebskosten (netto)€ 572,78
Provision
3% des Kaufpreises zzgl. 20% USt.
Vertragsart
, Kauf
Wohnfläche
238,66 m2 (5 Zimmer)
Freifläche
, Terrasse
Objektart
Dachgeschosswohnung
Bauart
Neubau: 2010
Energie
HWB74 kWh/m²
HWB-KlasseC
fGEE2,82
fGEE-KlasseE
Energieausweis bis2030-08-04
Verfügbar
ab sofort
Beschreibung
In sehr guter und zentraler Lage des 19. Bezirks befindet sich diese außergewöhnliche Dachgeschoss-Maisonette, die mit einer Wohnfläche von rund 239 m² und einer großzügigen Terrasse von etwa 73 m² ein Wohnambiente auf höchstem Niveau bietet. Auf zwei Ebenen vereint sie elegante Architektur, durchdachte Raumaufteilung und ein besonderes Gefühl von Weite und Licht.
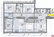
RAUMAUFTEILUNG
Im ersten Dachgeschoss liegt der private Bereich der Wohnung. Hier befinden sich drei (Schlaf-)Zimmer sowie ein großzügiger Masterbedroom mit angeschlossenem Bad. Ausgestattet mit Doppelwaschtisch, D..
RAUMAUFTEILUNG
Im ersten Dachgeschoss liegt der private Bereich der Wohnung. Hier befinden sich drei (Schlaf-)Zimmer sowie ein großzügiger Masterbedroom mit angeschlossenem Bad. Ausgestattet mit Doppelwaschtisch, D..
Mehr
Weitere Preisinformationen
- Sonstige Kosten€ 226,10
Lage
Sickenberggasse
Auswahl ändern
Anbieter

Anbieter
Georg Römer
Römer Real GmbHTelefon
+43 650 294...

Anbieter kontaktieren