Außergewöhnliche Terrassenwohnung Nähe AKH!
1090 Wien, Alsergrund, Severingasse























137 m²€ 2.800,00
Objektinformation
Kosten
Gesamtbelastung (brutto)€ 2.800,00
Gesamtbelastung (netto)€ 2.545,46
Summe Miete (netto)€ 2.130,90
Betriebskosten (netto)€ 353,93
Provision
Gemäß Erstauftraggeberprinzip bezahlt der Abgeber die Provision.
Vertragsart
, Miete , befristet
Wohnfläche
137 m2
Freifläche
, Terrasse (3)
Bauart
Neubau
Energie
HWB90 kWh/m²
HWB-KlasseC
Verfügbar
ab sofort
Beschreibung
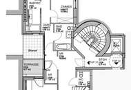
Zur Vermietung gelangt eine außergewöhnliche Dachgeschoßwohnung, welche durch eine moderne Architektur, zeitloses Ambiente und einer hochwertigen Ausstattung besticht.
Die Wohnung befindet sich in einem exzellenten Zustand und lässt keine Wünsche offen!
Mit einer Gesamtfläche von 137 m² und drei Zimmern bietet diese Wohnung viel Platz und Raum.
Der ca. 46 m2 große Wohn- und Essbereich schafft ein Gefühl von Großzügigkeit.
Die beiden Schlafzimmer sind hofseitig gelegen und verfügen über einen guten Grundriss. Das große Schlafzimmer verfügt auch über einen Zugang auf eine private..
Die Wohnung befindet sich in einem exzellenten Zustand und lässt keine Wünsche offen!
Mit einer Gesamtfläche von 137 m² und drei Zimmern bietet diese Wohnung viel Platz und Raum.
Der ca. 46 m2 große Wohn- und Essbereich schafft ein Gefühl von Großzügigkeit.
Die beiden Schlafzimmer sind hofseitig gelegen und verfügen über einen guten Grundriss. Das große Schlafzimmer verfügt auch über einen Zugang auf eine private..
Mehr
Weitere Preisinformationen
- Sonstige Kosten€ 60,63
Lage
Die Liegenschaft befindet sich in der Severingasse, nur wenige Gehminuten vom AKH und der Währinger Straße entfernt.
Die Nahversorgung ist durch diverse Geschäfte aller Art in Gehminuten bestens gegeben.
Die Anbindung an das öffentliche Verkehrsnetz (U6 Währinger Straße / Volksoper und Straßenbahnlinien 5, 33, 37, 38, 40, 41 und 42) ist ebenso ausgezeichnet, so ist die Wiener Innenstadt in wenigen Minuten erreichbar.
Die Nahversorgung ist durch diverse Geschäfte aller Art in Gehminuten bestens gegeben.
Die Anbindung an das öffentliche Verkehrsnetz (U6 Währinger Straße / Volksoper und Straßenbahnlinien 5, 33, 37, 38, 40, 41 und 42) ist ebenso ausgezeichnet, so ist die Wiener Innenstadt in wenigen Minuten erreichbar.
Auswahl ändern
Anbieter

Anbieter
Christoph Kral
WINEGG Makler GmbHTelefon
+43 676 6...

Anbieter kontaktieren