Typisch Wien – nur schöner! Altbau mit Wow-Faktor & Platz zum Leben – Jetzt entdecken!
1050 Wien, Margareten, Reinprechtsdorfer Straße





























Objektinformation
Kosten
Kaufpreis€ 409.000
Kaufpreis / m²€ 5.701,94
Provision
3% des Kaufpreises zzgl. 20% USt.
Vertragsart
, Kauf
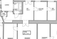
Wohnfläche
71,73 m2 (2.5 Zimmer)
Bauart
Altbau: 1914
Energie
HWB128 kWh/m²
HWB-KlasseD
fGEE2,51
fGEE-KlasseE
Energieausweis bis2029-04-11
Verfügbar
ab sofort
Beschreibung
Typisch Wien – nur schöner! Altbau mit Wow-Faktor & Platz zum Leben – Jetzt entdecken!
Diese traumhafte 3-Zimmer-Wohnung in einem der schönsten Häuser der Reinprechtsdorfer Straße vereint klassischen Wiener Altbaucharme mit durchdachter Raumaufteilung und dem gewissen Etwas. Man öffnet die Tür. Und plötzlich ist alles ruhig.
Das Licht fällt durch die hohen Fenster, streift den Stuck an der Decke, tanzt über den Parkettboden –
und in diesem Moment weiß man: Hier bin ich zu Hause.
Diese Wohnung hat kein lautes „Schau her“ –
sie hat dieses leise, tiefe „Bleib doch..
Diese traumhafte 3-Zimmer-Wohnung in einem der schönsten Häuser der Reinprechtsdorfer Straße vereint klassischen Wiener Altbaucharme mit durchdachter Raumaufteilung und dem gewissen Etwas. Man öffnet die Tür. Und plötzlich ist alles ruhig.
Das Licht fällt durch die hohen Fenster, streift den Stuck an der Decke, tanzt über den Parkettboden –
und in diesem Moment weiß man: Hier bin ich zu Hause.
Diese Wohnung hat kein lautes „Schau her“ –
sie hat dieses leise, tiefe „Bleib doch..
Mehr
Lage
Willkommen in Margareten – einem der spannendsten und vielseitigsten Bezirke Wiens.
Die Reinprechtsdorfer Straße verbindet urbanes Flair mit echtem Wiener Charakter:
U-Bahn, Bus & Citybike in wenigen Minuten erreichbar
Supermärkte, Bäckereien, Apotheken & Ärzte ums Eck
Charmante Cafés, internationale Gastronomie & der beliebte Naschmarkt in der Nähe
Kurze Wege in den 1. Bezirk, nach Mariahilf & zum Schlosspark Schönbrunn
Beliebtes Wohngebiet für Kreative, Junge & alle, die das echte Wien schätzen
Die Reinprechtsdorfer Straße verbindet urbanes Flair mit echtem Wiener Charakter:
U-Bahn, Bus & Citybike in wenigen Minuten erreichbar
Supermärkte, Bäckereien, Apotheken & Ärzte ums Eck
Charmante Cafés, internationale Gastronomie & der beliebte Naschmarkt in der Nähe
Kurze Wege in den 1. Bezirk, nach Mariahilf & zum Schlosspark Schönbrunn
Beliebtes Wohngebiet für Kreative, Junge & alle, die das echte Wien schätzen
Auswahl ändern
Anbieter

Anbieter
Dejan Ljepoja, MBA
Schantl ITH Immobilientreuhand GmbHTelefon
+43 660 199...

Anbieter kontaktieren