3-Zimmer Wohnung mit Gemeinschaftsterrasse nahe Schwarzenbergplatz, 1040!
1040 Wien, Wieden























77,11 m²3 Zimmer€ 1.983,00
Objektinformation
Kosten
Gesamtbelastung (brutto)€ 1.983,00
Gesamtbelastung (netto)€ 1.802,73
Gesamtmiete (brutto)€ 1.948,66
Gesamtmiete (netto)€ 1.771,51
Summe Miete (netto)€ 1.560,00
Miete / m²€ 20,23
Betriebskosten (netto)€ 180,47
Provision
Gemäß Erstauftraggeberprinzip bezahlt der Abgeber die Provision.
Kautionshinweis
3 Bruttomonatsmieten
Vertragsart
, Miete , befristet
Wohnfläche
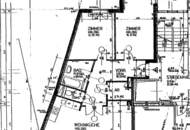
77,11 m2 (3 Zimmer)
Bauart
Neubau: 1998
Energie
HWB57,6 kWh/m²
HWB-KlasseC
fGEE1,24
fGEE-KlasseC
Energieausweis bis2032-06-12
Verfügbar
ab sofort
Beschreibung
_3-Zimmer Wohnung mit Gemeinschaftsterrasse nahe Schwarzenbergplatz, 1040! _
Zur Vermietung gelangt diese ruhig gelegene und _sehr gut aufgeteilte 3-Zimmer Neubauwohnung_ in Toplage nahe Schwarzenbergplatz und Hochstrahlbrunnen!
Eine _schöne Gemeinschaftsterrasse mit tollem Blick zur Karlskirche_ steht allen Bewohnern des Hauses zur Verfügung. Das Objekt eignet sich aufgrund seines effizienten Grundrisses auch ideal als WG!
Die perfekt aufgeteilte Wohnung befindet sich im 3. Liftstock eines gepflegten Hauses und verfügt über _ca. 77,11 m² Wohnfläche._..
Zur Vermietung gelangt diese ruhig gelegene und _sehr gut aufgeteilte 3-Zimmer Neubauwohnung_ in Toplage nahe Schwarzenbergplatz und Hochstrahlbrunnen!
Eine _schöne Gemeinschaftsterrasse mit tollem Blick zur Karlskirche_ steht allen Bewohnern des Hauses zur Verfügung. Das Objekt eignet sich aufgrund seines effizienten Grundrisses auch ideal als WG!
Die perfekt aufgeteilte Wohnung befindet sich im 3. Liftstock eines gepflegten Hauses und verfügt über _ca. 77,11 m² Wohnfläche._..
Mehr
Weitere Preisinformationen
- Sonstige PreisangabenZusätzliche Betriebskosten (z.B.: WW, Heizung, ...) finden Sie aufgeschlüsselt im Angebotstext.
- Heizkosten (netto)€ 31,22
- Sonstige Kosten€ 31,04
Auswahl ändern
Anbieter

Anbieter
Herzel Immobilien e.U.
HERZEL Immobilien e.U.Telefon
+43 1 3...

Anbieter kontaktieren