Idyllisches Reihenhaus mit Garten in Essling nahe Lobau und Marchfeld Center
1220 Wien, Donaustadt

360 Grad Ansicht Nr. 1

















































Objektinformation
Kosten
Kaufpreis€ 598.000
Provision
3% des Kaufpreises zzgl. 20% USt.
Vertragsart
, Kauf
Wohnfläche
134 m2 (6 Zimmer)
Grundstück
250 m2
Freifläche
, Terrasse
Energie
HWB88,9 kWh/m²
HWB-KlasseC
fGEE-KlasseC
Beschreibung
Zum Verkauf gelangt dieses Reihenhaus mit einer Wohnfläche von ca. 134 m² aufgeteilt auf EG, OG und DG und einem ca. 158 m² großen Garten in ruhiger Lage von Essling.
Die Nutzfläche des Hauses inkl. KG und Dachbodenraum beträgt ca. 205 m².
Aufteilung
EG
Wohnküche mit ca. 23 m² und südwest-seitiges Zimmer mit ca. 23 m² mit Zugang zur südwest-seitigen Terrasse und Garten
Vorraum und WC
OG
Zimmer mit ca. 21 m²
Zimmer mit ca. 11 m²
Zimmer mit ca. 12 m²
Bad mit ca. 4 m²
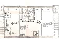
DG
Zimmer mit ca. 30 m²
Dachboden mit ca. 13 m²
KG
ca. 57,5 m² inkl. ..
Die Nutzfläche des Hauses inkl. KG und Dachbodenraum beträgt ca. 205 m².
Aufteilung
EG
Wohnküche mit ca. 23 m² und südwest-seitiges Zimmer mit ca. 23 m² mit Zugang zur südwest-seitigen Terrasse und Garten
Vorraum und WC
OG
Zimmer mit ca. 21 m²
Zimmer mit ca. 11 m²
Zimmer mit ca. 12 m²
Bad mit ca. 4 m²
DG
Zimmer mit ca. 30 m²
Dachboden mit ca. 13 m²
KG
ca. 57,5 m² inkl. ..
Mehr
Zusatzinformationen
ANSCHLÜSSE
Gas: nicht vorhanden
Kanal: nicht vorhanden
Wasser: nicht vorhanden
Strom: nicht vorhanden
Starkstrom: nicht vorhanden
Brunnen: nicht vorhanden
Telefon: nicht vorhanden
TV Kabel: nicht vorhanden
TV Sat: nicht vorhanden
Internet: nicht vorhanden
Fernwärme: nicht vorhanden
Senkgrube: nicht vorhanden
Auswahl ändern
Anbieter

Anbieter
Peter Grand (Team Hubert Koller)
RE/MAX Real Experts Immobilien lifetime GmbHTelefon
+43 699 131...

Anbieter kontaktieren
Virtuelle Besichtigung