Bewilligtes Bauprojekt für 13 Mikroapartments für Hotel Garni oder Kurzzeitvermietung in Dornbirn
6850 Dornbirn, Altweg















Objektinformation
Kosten
Preis auf Anfrage
Provision
3%
Vertragsart
, Kauf
Wohnfläche
450 m2
Grundstück
617 m2
Energie
HWB35 kWh/m²
HWB-KlasseB
fGEE0,68
fGEE-KlasseA+
Beschreibung
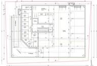
13 Mikroapartement mit Baubewilligung
Beste Lage, ruhig & zentral, in Bahnhof- und Stadtnähe
Tiefgarage mit neun Autoeinstellplätzen, Fahrradabstellbereiche und Kellerabteile
Wohnfläche 450 m²
9 Tiefgaragenplätze
2 x 3 Zimmer Wohnungen
6 x 2 Zimmer Wohnungen
5 x 1 Zimmer Wohnungen
Ankauf Grundstück mit Baugenehmigung und Planung bzw. Schlüsselfertig
Beste Lage, ruhig & zentral, in Bahnhof- und Stadtnähe
Tiefgarage mit neun Autoeinstellplätzen, Fahrradabstellbereiche und Kellerabteile
Wohnfläche 450 m²
9 Tiefgaragenplätze
2 x 3 Zimmer Wohnungen
6 x 2 Zimmer Wohnungen
5 x 1 Zimmer Wohnungen
Ankauf Grundstück mit Baugenehmigung und Planung bzw. Schlüsselfertig
Weitere Preisinformationen
- Nettorendite Ist€ 1,00
Zusatzinformationen
- 3,5% Grunderwerbsteuer
- 1,1% Grundbuchseintragung
- 3,0% Vermittlungsprovision zzgl. 20% MwSt.
- Vertragserrichtungskosten
- Beglaubigungskosten + Barauslagen
Auswahl ändern
Anbieter

Anbieter
Reinhard Götze
RE/MAX Immowest LauterachTelefon
00436644...

Anbieter kontaktieren