Schöne, großzügige Bürofläche im Herzen Wiens
1010 Wien, Innere Stadt, Rotenturmstraße


























278,22 m²6 Räume€ 5.935,31
Objektinformation
Kosten
Gesamtbelastung (netto)€ 5.935,31
Summe Miete (netto)€ 5.147,07
Betriebskosten (netto)€ 689,82
Provision
3 Bruttomonatsmieten zzgl. 20% USt.
Vertragsart
, Miete
Nutzfläche
278,22 m2 (6 Zimmer)
Energie
HWB129,6 kWh/m²
HWB-KlasseD
fGEE1,99
fGEE-KlasseD
Energieausweis bis2032-08-03
Verfügbar
ab sofort
Beschreibung
Highlights:
*
Zentrale Innenstadtlage (Nähe Stephansplatz)
*
Repräsentativer Altbau mit Charme
*
Gute öffentliche Erreichbarkeit
Objektbeschreibung:
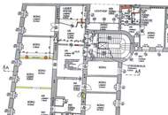
Die Bürofläche mit rund 278 m² befindet sich in einem sehr schönen Altbau auf der Rotenturmstraße, einer der exklusivsten Geschäftsadressen in Wien. Die Immobilie bietet rundum durchdachte Raumverhältnisse: Aktuell ist das Büro sehr offen gestaltet und es gibt insgesamt 5 Büroräume. Durch leichte Umbauarbeiten können aber bis zu 8 Büroräume geschaffen werden. Zusätzlich gibt es noch e..
*
Zentrale Innenstadtlage (Nähe Stephansplatz)
*
Repräsentativer Altbau mit Charme
*
Gute öffentliche Erreichbarkeit
Objektbeschreibung:
Die Bürofläche mit rund 278 m² befindet sich in einem sehr schönen Altbau auf der Rotenturmstraße, einer der exklusivsten Geschäftsadressen in Wien. Die Immobilie bietet rundum durchdachte Raumverhältnisse: Aktuell ist das Büro sehr offen gestaltet und es gibt insgesamt 5 Büroräume. Durch leichte Umbauarbeiten können aber bis zu 8 Büroräume geschaffen werden. Zusätzlich gibt es noch e..
Mehr
Weitere Preisinformationen
- Sonstige Kosten€ 98,42
Lage
Nähe Stephansdom und Schwedenplatz
Auswahl ändern
Anbieter

Anbieter
Nadine Neumann
EDEX Immobilien GmbHTelefon
+436769...

Anbieter kontaktieren
Virtuelle Besichtigung