PAKET AUS GESCHÄFTSLOKALEN | AN STRASSENFRONT | 4 EINHEITEN
1070 Wien, Neubau, Lindengasse








135,14 m²€ 836.034
Objektinformation
Kosten
Kaufpreis€ 836.034
Provision
3% des Kaufpreises zzgl. 20% USt.
Vertragsart
, Kauf
Nutzfläche
135,14 m2
Energie
HWB77,8 kWh/m²
HWB-KlasseC
fGEE1,88
fGEE-KlasseD
Energieausweis bis2033-01-01
Beschreibung
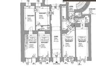
Zum Verkauf stehen mehrere vermietete Geschäftslokale, alle an der Straßenfront, mit folgenden Fakten:
Top 1
*
Nutzfläche: 15,03 m²
*
Hauptmietzins (HMZ): 466,80 € / Monat
*
Mietverhältnis: befristet bis 30.11.2026
*
Mietvertrag seit: 01.12.2023
Top 2
*
Nutzfläche: 71,33 m²
*
Hauptmietzins (HMZ): 1.852,63 € / Monat
*
Mietverhältnis: befristet bis 14.12.2026
*
Mietvertrag seit: 14.12.2023
Top 3
*
Nutzfläche: 24,03 m²
*
Hauptmietzins (HMZ): 496,45 € / Monat..
Top 1
*
Nutzfläche: 15,03 m²
*
Hauptmietzins (HMZ): 466,80 € / Monat
*
Mietverhältnis: befristet bis 30.11.2026
*
Mietvertrag seit: 01.12.2023
Top 2
*
Nutzfläche: 71,33 m²
*
Hauptmietzins (HMZ): 1.852,63 € / Monat
*
Mietverhältnis: befristet bis 14.12.2026
*
Mietvertrag seit: 14.12.2023
Top 3
*
Nutzfläche: 24,03 m²
*
Hauptmietzins (HMZ): 496,45 € / Monat..
Mehr
Lage
U3 Neubaugasse
Auswahl ändern
Anbieter

Anbieter
Nicolas Putzlager
DECUS Immobilien GmbHTelefon
+43 660 302...

Anbieter kontaktieren
