PROVISIONSFREI - ERSTBEZUG - Bezugsfertige, klimatisierte Dachmaisonette-Wohnung mit 3 Schlafzimmern, Wohnküche und 45 m² Terrassen
1230 Wien, Liesing, Altmannsdorfer Straße


























































Objektinformation
Kosten
Kaufpreis€ 660.000
Vertragsart
, Kauf
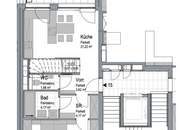
Wohnfläche
121,18 m2 (5 Zimmer)
Freifläche
, Terrasse (4)
Bauart
Neubau
Energie
HWB34,5 kWh/m²
HWB-KlasseB
fGEE0,74
fGEE-KlasseA
Energieausweis bis2032-02-15
Beschreibung
Highlights
* Erstbezugswohnungen mit effizienten Grundrissen - sofort beziehbar
* Voll ausgestattete Küchen
* Niedrigenergiehaus mit Luftwärmepumpe und Photovoltaik-Anlage
* Hochwertige Eichen-Parkettfußböden mit Fußbodenheizung
* alle Wohnungen mit Balkon, Loggia oder Terrasse und Grünblick
* nur 7 Gehminuten bis zur U6 Station Erlaaer Straße
* attraktive Renditen für Anleger und Investoren in einer wachsenden Gegend Wiens
Herzlich willkommen im Wohnbauprojekt Altmannsdorfer Straße 188 im aufstrebenden..
* Erstbezugswohnungen mit effizienten Grundrissen - sofort beziehbar
* Voll ausgestattete Küchen
* Niedrigenergiehaus mit Luftwärmepumpe und Photovoltaik-Anlage
* Hochwertige Eichen-Parkettfußböden mit Fußbodenheizung
* alle Wohnungen mit Balkon, Loggia oder Terrasse und Grünblick
* nur 7 Gehminuten bis zur U6 Station Erlaaer Straße
* attraktive Renditen für Anleger und Investoren in einer wachsenden Gegend Wiens
Herzlich willkommen im Wohnbauprojekt Altmannsdorfer Straße 188 im aufstrebenden..
Mehr
Lage
Altmannsdorfer Straße, Nähe U6 Station Erlaaer Straße
Auswahl ändern
Anbieter

Anbieter
Michaela Sauer
EDEX Immobilien GmbHTelefon
+436641...

Anbieter kontaktieren