Exklusive 2-Zimmer-Dachgeschoßwohnung mit 2 Terrassen
1150 Wien, Rudolfsheim-Fünfhaus, Markgraf-Rüdiger-Straße















2 Zimmer€ 1.395,00
Objektinformation
Kosten
Gesamtbelastung (brutto)€ 1.395,00
Gesamtbelastung (netto)€ 1.268,18
Summe Miete (netto)€ 1.088,83
Betriebskosten (netto)€ 179,35
Provision
Gemäß Erstauftraggeberprinzip bezahlt der Abgeber die Provision.
Kautionshinweis
3 Bruttomonatsmieten
Vertragsart
, Miete , befristet
Wohnfläche
keine Angabe
Freifläche
, Terrasse
Objektart
Dachgeschosswohnung
Bauart
Neubau: 2018
Energie
HWB41,53 kWh/m²
HWB-KlasseB
fGEE0,83
fGEE-KlasseA
Energieausweis bis2028-12-02
Beschreibung
Highlights
* 2-Zimmer-Maisonette | Erstbezug
* Klimaanlage
* 2 großzügige Terrassen mit Fernblick
* optimale Verkehrsanbindung
* Abstellraum
Objektbeschreibung
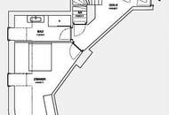
Diese wunderschöne, 2020 errichtete 2-Zimmer-Dachgeschoßwohnung liegt im 15. Wiener Gemeindebezirk in unmittelbarer Nähe zum Vogelweidpark und gelangt ab 15.01.2026 zur Vermietung. Die Wohnung befindet sich im 1. Dachgeschoß eines gepflegten Altbaus mit Lift und verfügt auf einer Ebene über einen zentralen Vorraum, ein geräumiges Schlafzimmer mit En-Suite-Bad mit Badewanne, e..
* 2-Zimmer-Maisonette | Erstbezug
* Klimaanlage
* 2 großzügige Terrassen mit Fernblick
* optimale Verkehrsanbindung
* Abstellraum
Objektbeschreibung
Diese wunderschöne, 2020 errichtete 2-Zimmer-Dachgeschoßwohnung liegt im 15. Wiener Gemeindebezirk in unmittelbarer Nähe zum Vogelweidpark und gelangt ab 15.01.2026 zur Vermietung. Die Wohnung befindet sich im 1. Dachgeschoß eines gepflegten Altbaus mit Lift und verfügt auf einer Ebene über einen zentralen Vorraum, ein geräumiges Schlafzimmer mit En-Suite-Bad mit Badewanne, e..
Mehr
Lage
nähe Stadthalle
Auswahl ändern
Anbieter

Anbieter
Michaela Sauer
EDEX Immobilien GmbHTelefon
+436641...

Anbieter kontaktieren