Gumpendorfer Straße: 5-Zimmer-Maisonette mit Terrasse
1060 Wien, Mariahilf, Gumpendorfer Straße







5 Zimmer€ 3.293,42
Objektinformation
Kosten
Gesamtbelastung (brutto)€ 3.293,42
Gesamtbelastung (netto)€ 2.964,17
Gesamtmiete (brutto)€ 2.820,53
Gesamtmiete (netto)€ 2.564,11
Summe Miete (netto)€ 2.144,98
Betriebskosten (netto)€ 370,06
Provision
Gemäß Erstauftraggeberprinzip bezahlt der Abgeber die Provision.
Kautionshinweis
€ 9.900,00
Vertragsart
, Miete , befristet
Wohnfläche
keine Angabe
Freifläche
, Terrasse
Objektart
Maisonette
Bauart
Altbau
Energie
HWB82,4 kWh/m²
HWB-KlasseC
fGEE1,49
fGEE-KlasseC
Energieausweis bis2035-03-05
Beschreibung
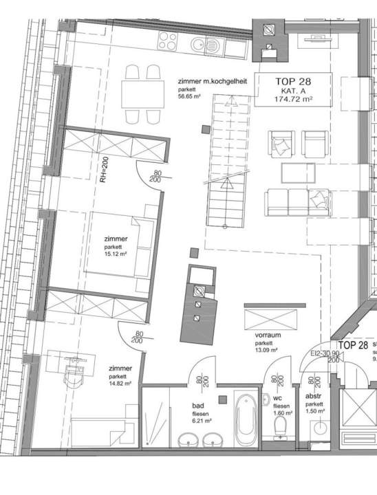
5-ZIMMER-MAISONETTEN WOHNUNG IN 1060 WIEN AB APRIL 2026!
AUFTEILUNG:
unteres Stockwerk: Vorraum, Abstellraum, Wohnzimmer inkl. Wohnküche, zwei separate (Schlaf)zimmer, Badezimmer, separates WC
oberes Stockwerk: große Galerie (wird als Zimmer gezählt, ein weiteres separates (Schlaf)zimmer, Zugang zur Terrasse
BESCHREIBUNG:
Die unbefristet vermietete Maisonetten-Wohnung befindet sich im 6. Wiener Gemeindebezirk und liegt im DG des Hauses.
Beim Betreten der Wohnung gelangen Sie in einen großzü..
AUFTEILUNG:
unteres Stockwerk: Vorraum, Abstellraum, Wohnzimmer inkl. Wohnküche, zwei separate (Schlaf)zimmer, Badezimmer, separates WC
oberes Stockwerk: große Galerie (wird als Zimmer gezählt, ein weiteres separates (Schlaf)zimmer, Zugang zur Terrasse
BESCHREIBUNG:
Die unbefristet vermietete Maisonetten-Wohnung befindet sich im 6. Wiener Gemeindebezirk und liegt im DG des Hauses.
Beim Betreten der Wohnung gelangen Sie in einen großzü..
Mehr
Weitere Preisinformationen
- Heizkosten (netto)€ 400,06
- Sonstige Kosten€ 49,07
Lage
1060 Wien / Gumpendorfer Straße / Mariahilfer Straße / Otto-Bauer-Gasse / Pilgramgasse
Zusatzinformationen
HINWEISE: Die Informationen in diesen Unterlagen wurden mit großer Sorgfalt zusammengestellt. Für die Richtigkeit und Vollständigkeit kann jedoch keine Gewähr übernommen werden. Die Ausstattung und Möblierung in Visualisierungen dienen als Beispiele und sind nicht Bestandteil der Wohnungen. Im Übrigen gelten die allgemeinen Geschäftsbedingungen sowie die Verordnung des BM für wirtschaftliche Angelegenheiten über Standes- und Ausübungsregeln für Immobilienmakler als vereinbart.
Weitere Informationen und alle Objekte finden Sie unter: WWW.PR-IMMOBILIEN.AT [http://www.pr-immobilien.at/]
Auswahl ändern
Anbieter

Anbieter
Marissa Stifter
PR-IMMOBILIEN / REAL ESTATETelefon
0676 / 59 ...

Anbieter kontaktieren