Einfamilienhaus im Innenhof – sanierungsbedürftiges Haus in ruhiger Lage des 21. Bezirks
1210 Wien, Floridsdorf

























Objektinformation
Kosten
Kaufpreis€ 260.000
Betriebskosten (netto)€ 125,42
Provision
3% des Kaufpreises zzgl. 20% USt.
Vertragsart
, Kauf
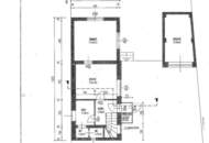
Wohnfläche
71 m2 (2.5 Zimmer)
Freifläche
, Terrasse
Bauart
Neubau
Verfügbar
ab sofort
Beschreibung
Zum Verkauf gelangt ein komplett sanierungsbedürftiges Einfamilienhaus, das sich in einem Innenhof eines Mehrfamilienhauses in der beliebten Grabmayrgasse im 21. Wiener Gemeindebezirk befindet.
Die ruhige Hoflage, das charmante Umfeld und das große Potenzial zur individuellen Gestaltung machen dieses Objekt besonders interessant für Bastler und kreative Käufer.
Der Zugang erfolgt über das straßenseitige Wohnhaus in der Grabmayrgasse. Das Einfamilienhaus liegt sonnig und geschützt im Innenhof und bietet auf rund 71 m² Wohnfläche, verteilt auf zwei Ebenen, vielfältige Möglichkeiten zur..
Die ruhige Hoflage, das charmante Umfeld und das große Potenzial zur individuellen Gestaltung machen dieses Objekt besonders interessant für Bastler und kreative Käufer.
Der Zugang erfolgt über das straßenseitige Wohnhaus in der Grabmayrgasse. Das Einfamilienhaus liegt sonnig und geschützt im Innenhof und bietet auf rund 71 m² Wohnfläche, verteilt auf zwei Ebenen, vielfältige Möglichkeiten zur..
Mehr
Lage
Dieses charmante Einfamilienhaus in 1210 Wien überzeugt durch seine hervorragende Lage im Nordwesten. Nur wenige Schritte entfernt finden Sie alles, was das Herz begehrt: Arzt, Apotheke, Schule und Kindergarten sind in unmittelbarer Nähe. Auch Einkaufsmöglichkeiten wie Supermärkte und Bäckereien sind schnell erreichbar. Genießen Sie die Nähe zum Nahverkehr mit Bus, U-Bahn und Straßenbahn, sowie schnellen Anbindungen zur Autobahn. Ein ideales Zuhause für Familien und Pendler!
Auswahl ändern
Anbieter

Anbieter
Betül Cakmak
Wohnsalon Immobilien GmbHTelefon
+43 676 84 53 ...

Anbieter kontaktieren
Downloads zum Objekt