Charmant mit herrlichem Grünblick
1230 Wien, Liesing




















Objektinformation
Kosten
Kaufpreis€ 389.000
Betriebskosten (netto)€ 154,98
Provision
3% des Kaufpreises zzgl. 20% USt.
Vertragsart
, Kauf
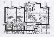
Wohnfläche
79 m2 (3 Zimmer)
Freifläche
, Balkon
Bauart
Neubau: 1989
Energie
HWB122,2 kWh/m²
HWB-KlasseD
fGEE1,96
fGEE-KlasseD
Energieausweis bis2032-11-20
Beschreibung
Charmantes Wohnen in herrlich grüner und ruhiger Lage!
Die 3-Zimmer-Wohnung liegt im 1. Stock
und bezaubert mit einem
offenem Wohn- Küchenbereich
inklusive Einbauküche,
Schwedenofen & Echtholz-Eichenparkett im Wohnzimmer & einem
Balkon mit romantischen Blick ins Grüne, ruhig und uneingesehen, ohne "Gegenüber".
Ein großzügiges Kellerabteil ist weiters zugehörig.
Die Wohnhausanlage (ohne Lift) wurde 2024 umfassend saniert (Balkone, Elektroanlagen, Gasleitungen, Stiegenhaus, Gart..
Die 3-Zimmer-Wohnung liegt im 1. Stock
und bezaubert mit einem
offenem Wohn- Küchenbereich
inklusive Einbauküche,
Schwedenofen & Echtholz-Eichenparkett im Wohnzimmer & einem
Balkon mit romantischen Blick ins Grüne, ruhig und uneingesehen, ohne "Gegenüber".
Ein großzügiges Kellerabteil ist weiters zugehörig.
Die Wohnhausanlage (ohne Lift) wurde 2024 umfassend saniert (Balkone, Elektroanlagen, Gasleitungen, Stiegenhaus, Gart..
Mehr
Weitere Preisinformationen
- Sonstige Kosten€ 118,10
Lage
TOP-LAGE nahe dem Maurer Hauptplatz
Auswahl ändern
Anbieter

Anbieter
Karin Birbamer
LEXERIMMO.AT GmbHTelefon
+43 676 84 333...

Anbieter kontaktieren