Wiener Geschichte neu komponiert | VICUS NUCUM | Nähe Kahlenberg, Cobenzl & Beethovengang | ERSTBEZUG
1190 Wien, Döbling






Objektinformation
Kosten
Kaufpreis€ 798.000
Provision
3% des Kaufpreises zzgl. 20% USt.
Vertragsart
, Kauf
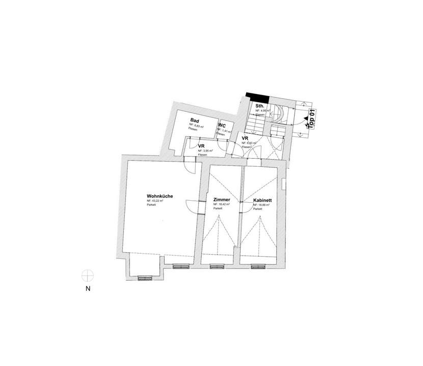
Wohnfläche
104,09 m2 (3 Zimmer)
Beschreibung
Wiener Geschichte neu komponiert !
Eingebettet zwischen Weinbergen, historischen Gassen und den vielen bekannten Heurigen von Nußdorf lädt das Neubauprojekt „VICUS NUCUM“ dazu ein, das besondere Wiener Lebensgefühl neu zu entdecken. Hier, wo sich Beethoven bei seinen täglichen Spaziergängen entlang des Schreiberbachs inspirieren ließ, verschmelzen Natur, Geschichte und moderner Wohnkomfort auf einzigartige Weise.
Tradition trifft auf moderne Architektur: Das Haus aus dem 13. Jahrhundert in der Greinergasse 42 erhält nun eine behutsame, zeitgemä..
Eingebettet zwischen Weinbergen, historischen Gassen und den vielen bekannten Heurigen von Nußdorf lädt das Neubauprojekt „VICUS NUCUM“ dazu ein, das besondere Wiener Lebensgefühl neu zu entdecken. Hier, wo sich Beethoven bei seinen täglichen Spaziergängen entlang des Schreiberbachs inspirieren ließ, verschmelzen Natur, Geschichte und moderner Wohnkomfort auf einzigartige Weise.
Tradition trifft auf moderne Architektur: Das Haus aus dem 13. Jahrhundert in der Greinergasse 42 erhält nun eine behutsame, zeitgemä..
Mehr
Lage
Die historischen Gassen Nußdorfs ziehen Besucher aus ganz Wien an, um Weinwanderungen und genussvolle Heurige zu erleben! Stellen Sie sich vor, dass Sie ab jetzt nur einen Katzensprung davon entfernt wohnen. Der berühmte D-Wagen, seit Generationen ein Stück Wiener Geschichte, fährt direkt vom Herzen der Stadt hinaus ins Grüne – zu den sanften Weinbergen, zu den Heurigen, zu Momenten voller Leichtigkeit.
Nussberg und Kahlenberg – so können Sie jedes Wochenende den Stadtwanderweg 1 neu erkunden und die gemütlichen Heurigen am Nussberg mit Aussicht besuchen.
Traditionelle und prominente Gastronomie in Gehweite: Plachutta, Mayer am Pfarrplatz, Zum Renner, Wieninger am Nussberg u.v.m.
Die Lage bietet außerdem zahlreiche Möglichkeiten für sportliche Aktivitäten – ob Mountainbiken, Wandern, Klettern oder Spaß in Kletterpark.
Für Weinliebhaber ist die Lage besonders attraktiv, da sich hier einige der beliebtesten Wiener Weinwanderstrecken befinden.
Nahversorger:
- Billa: (ca. 3 Gehminuten)
- Hofer (ca. 6 Gehminuten)
Öffentliche Verkehrsmittel:
- S-Bahn-S40, Station Nußdorf; Richtung Wien Franz-Josefs-Bahnhof oder St. Pölten Hauptbahnhof (ca. 3 Gehminuten entfernt)
- Straßenbahnlinie D, Station Nußdorf; Richtung Absberggasse oder Nußdorf, Beethovengang (ca. 2 Gehminuten entfernt)
- Bus 400, ISTA-Shuttle
- U4 Heiligenstadt (ca. 20 Gehminuten entfernt)
Freizeitsaktivitäten:
- Wien Beethoven Museum & Beethovengang (ca. 14 Gehminuten)
- Erlebnisbauernhof – Landgut Wien Cobenzl (ca. 12 min mit dem Auto oder ca. 24 min öffentlich)
- Waldseilpark Kahlenberg (ca. 14 min mit dem Auto oder ca. 38 min öffentlich)
- Krapfenwaldbad (ca. 7 min mit dem Auto)
- Stadtwanderweg 1
Klosterneuburg ist in nur 12 Minuten mit dem Auto erreichbar.
Nussberg und Kahlenberg – so können Sie jedes Wochenende den Stadtwanderweg 1 neu erkunden und die gemütlichen Heurigen am Nussberg mit Aussicht besuchen.
Traditionelle und prominente Gastronomie in Gehweite: Plachutta, Mayer am Pfarrplatz, Zum Renner, Wieninger am Nussberg u.v.m.
Die Lage bietet außerdem zahlreiche Möglichkeiten für sportliche Aktivitäten – ob Mountainbiken, Wandern, Klettern oder Spaß in Kletterpark.
Für Weinliebhaber ist die Lage besonders attraktiv, da sich hier einige der beliebtesten Wiener Weinwanderstrecken befinden.
Nahversorger:
- Billa: (ca. 3 Gehminuten)
- Hofer (ca. 6 Gehminuten)
Öffentliche Verkehrsmittel:
- S-Bahn-S40, Station Nußdorf; Richtung Wien Franz-Josefs-Bahnhof oder St. Pölten Hauptbahnhof (ca. 3 Gehminuten entfernt)
- Straßenbahnlinie D, Station Nußdorf; Richtung Absberggasse oder Nußdorf, Beethovengang (ca. 2 Gehminuten entfernt)
- Bus 400, ISTA-Shuttle
- U4 Heiligenstadt (ca. 20 Gehminuten entfernt)
Freizeitsaktivitäten:
- Wien Beethoven Museum & Beethovengang (ca. 14 Gehminuten)
- Erlebnisbauernhof – Landgut Wien Cobenzl (ca. 12 min mit dem Auto oder ca. 24 min öffentlich)
- Waldseilpark Kahlenberg (ca. 14 min mit dem Auto oder ca. 38 min öffentlich)
- Krapfenwaldbad (ca. 7 min mit dem Auto)
- Stadtwanderweg 1
Klosterneuburg ist in nur 12 Minuten mit dem Auto erreichbar.
Auswahl ändern
Anbieter

Anbieter
Vicus Nucum
Alexander Ringsmuth GmbHTelefon
+43 676 842 0...

Anbieter kontaktieren
Virtuelle Besichtigung